Az értékesítő:
Kálmán Orsolya
+36 70 413 6541

Eladó családi ház Monor, 89 900 000 Ft, 80 négyzetméter

89 900 000 Ft
családi ház, 80 négyzetméter
Építőanyag:
Tégla
Egész szobák:
4
Fűtés módja:
Hőszivattyú
Ingatlan állapota:
Épülő
Azonosító:
11571541
Értékesítés típusa:
eladó
Ingatlan típusa:
családi ház
Jelleg:
Ikerház
Település:
Monor
Alapterület:
80
Telekterület:
350
Ár:
89 900 000 Ft
Szintek száma:
Földszintes
Fűtés jellege:
Villany
Kor:
Új építésű
Erkély:
Van
Telekterület típusa:
négyzetméter
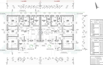
Eladó Monoron ikerház 80 m2 nagyságú lakása!Budapesttől 15 perces autóútra elhelyezkedő gyorsan fejlődő kisváros kertvárosi részén található újépítésű 80 m2 nagyságú lakás eladó!Sarki telken helyezkedik el, külön bejárattal!A lakások háztartási helyiséggel kapcsolódnak az udvar elkerített. teljesen különálló.Monor új parcellás részén, gyönyörű új lakások közt épült ingatlan, közelben bölcsőde és óvoda található.Magas műszaki tartalommal, hőszivattyús fűtéssel, melegvíz ellátása is erről megoldott.B 30-as téglából. cserép fedéssel, beton alapon, műanyag nyílászárókkal.Burkolatok 5000 ft/m2 értékben választható.Főbb jellemzők:Prémium kivitelezés, magas műszaki tartalom30 cm Porotherm + 15 cm grafitos hőszigetelés3 rétegű nyílászárók, monolit vasbeton födémPadlófűtés + hőszivattyúVárható átadás: 2026 májusAlacsony fenntartás, energiatakarékos megoldás!
https://ingatlanok.hu/elado/haz/monor/90-millio-ft;80-negyzetmeter;4-szoba;villany-futes/11571541