Az értékesítő:
Horváth Csanád
+36 20 364 4444

Eladó családi ház Mosonmagyaróvár, 129 900 000 Ft, 450 négyzetméter

129 900 000 Ft
családi ház, 450 négyzetméter
Egész szobák:
7
Ingatlan állapota:
Felújított
Azonosító:
11572148
Értékesítés típusa:
eladó
Ingatlan típusa:
családi ház
Jelleg:
Családi ház
Település:
Mosonmagyaróvár
Alapterület:
450
Ár:
129 900 000 Ft
Fűtés jellege:
Cirkó
Terasz:
Nincs
Erkély:
Nincs
Telekterület típusa:
négyzetméter
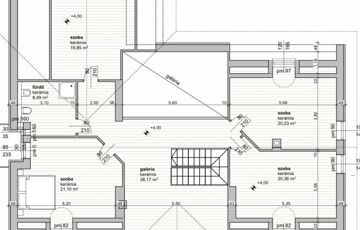
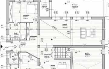
Mosonmagyaróvár központi részén, a Báger-tó szomszédságában, 1165 m2 -es, füvesített, parkosított telken elhelyezkedő, 1993 -ban épült, 3 szintes, nettó 303 bruttó 450 m2-es, 5 szoba + 2 nappalis, műanyagablakos, redőnyös és szúnyoghálós, szigetelt, hőszivattyús fűtési rendszerrel, kandallóval és napelemmel egyaránt rendelkező, alápincézett, 2000 - es évek elején felújított, és átépített, kiváló alaprajzi elrendezésű családi ház 27 m2-es dupla garázzsal, 150 m2-es kiépített pinceszinttel, 40 m2-es terasszal eladó. Ár.: 129 900 000 HUF Érd.: +36-20-36-44-444 Az eladásra kínált lakóház Mosonmagyaróvár központi részén helyezkedik el, lakóházas környezetben. Minden ami a hétköznapi élethez szükséges ( általános iskola, óvoda, bölcsőde, művelődési ház, könyvtár, orvosi rendelő, posta, pénzintézet, vendéglátó és szálláshelyek, élelmiszerboltok és egyéb bevásárlási lehetőségek) a településen megtalálható. Ezenkívül, ha valaki a természetben szeretne kirándulni, szintén rövid sétával eléri azt. A ház egyéb extrái a következők: - elektromos kovácsoltvas kapu és kerítés - kiépített riasztórendszer - fúrt kút és automata öntözőrendszer - 3X32 amper ipari áram - hobbiszoba - kerti faház • Ügyfeleink ingatlan vásárlását hozzáértő hitel tanácsadással, illetve teljes körű, ingyenes banki ügyintézéssel segítjük (támogatott és piaci lakáshitelek, falusi CSOK, babaváró hitel, személyi kölcsön vagy akár Lakástakarék Pénztár) • Kiemelt banki kedvezményeket nyújtunk partner pénzintézeteink kínálatából (kedvezményes kamat, ingyenes előtörlesztés, egyedi akciók) • Az összes bank ajánlata egy helyen ! • Kényelmi szolgáltatásként lakásbiztosítás, illetve hitelfedezeti biztosítás megkötésében is segítséget nyújtunk.
https://ingatlanok.hu/elado/haz/mosonmagyarovar/130-millio-ft;450-negyzetmeter;7-szoba;cirko-futes/11572148