Az értékesítő:
Göbölyös Judit
+36 70 269 5029

Eladó családi ház Dunaharaszti, 124 900 000 Ft, 150 négyzetméter

124 900 000 Ft
családi ház, 150 négyzetméter
Építőanyag:
Tégla
Egész szobák:
5
Komfort fokozat:
Összkomfort
Ingatlan állapota:
Azonosító:
11572229
Értékesítés típusa:
eladó
Ingatlan típusa:
családi ház
Jelleg:
Családi ház
Település:
Dunaharaszti
Alapterület:
150
Telekterület:
787
Ár:
124 900 000 Ft
Szintek száma:
1 szint
Fűtés jellege:
Egyéb
Kor:
50 évesnél régebbi
Terasz:
Van
Pince:
Van
Telekterület típusa:
négyzetméter
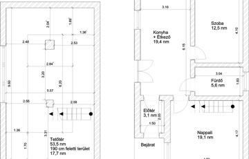
Két önálló családi ház egy telken! Összeköltözők, befektetők figyelmébe ajánlom! Két generáció együttélésére alkalmas ingatlant kínálunk megvételre Dunaharaszti Óvárosi részén. A 787 nm-es telken egy 95 nm-es és egy 55 nm-es önálló családi ház található. Az 1. ház paraméterei: 2020-ban felújították, - alapterülete nettó 95 nm, - téglaépítésű, szigetelt, homlokzata fa dekor panelekkel burkolt, - 2 rétegű műanyag nyílászárók, - fűtése Hajdú 1000 literes 2 hőcserélős puffertartályról, radiátoros hőleadással, - nappaliban 9 Kw-os kandalló, - 1 db hűtő-fűtő klima, - riasztó rendszer. Beosztása: -földszint- - előszoba, - konyha+ ebédlő, - hálószoba, - kádas fürdőszoba+WC, - nappali, - az emeleten 1 szobát alakítottak ki. - szuterén szinten kazánház 8nm, és a tároló 18,6nm található. A 2. ház paraméterei: felújított, 80 %-ban kész, - alapterülete nettó 55 nm, - tégla és ytong falazattal, külső szigeteléssel, - fa nyílászárókkal, - 1 db hűtő-fűtő klíma. Az udvarban gyűrűs kút van, öntözőrendszer előkészítve. Az ingatlan elhelyezkedése kiváló. Iskola, óvoda, orvosi rendelő, HÉV- megálló gyalogosan néhány perc alatt elérhető. Amivel segítjük az Ön ingatlanvásárlását: - ingyenes hitelügyintézés, - jogi háttér, - földhivatali ügyintézés, - energetikai tanúsítvány, - a vevő számára az ingatlanközvetítés ingyenes. Irodánk 30 éves szakmai tapasztalattal áll ügyfelei rendelkezésére! Várom szíves megkeresését!
https://ingatlanok.hu/elado/haz/dunaharaszti/125-millio-ft;150-negyzetmeter;5-szoba;egyeb-futes/11572229