Az értékesítő:
Somogyi Nikoletta
+36 70 605 0504

Eladó lakás Budapest XIV. ker, 56 900 000 Ft, 51 négyzetméter

56 900 000 Ft
lakás, 51 négyzetméter
Építőanyag:
Tégla
Egész szobák:
2
Komfort fokozat:
Összkomfort
Ingatlan állapota:
Felújítandó
Azonosító:
11572427
Értékesítés típusa:
eladó
Ingatlan típusa:
lakás
Település:
Budapest XIV. ker
Alapterület:
51
Ár:
56 900 000 Ft
Tulajdonviszony:
Saját
Emelet:
3. emelet
Fűtés jellege:
Konvektoros
Kilátás:
utcai
Építési év:
50 évesnél régebbi
Erkély:
Nincs
Kocsibeálló:
Van
Pince:
Nincs
Tároló:
Nincs
Lift:
Nincs
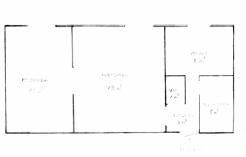
Zuglóban az Uzsoki kórház közelében, a Cinka Panna utcánál , felújitott 4szintes tégla társasház 3.emeletén eladásra kínálunk egy világos, csendes utcára néző, FELÚJÍTANDÓ 51nm-es 2 egybenyiló szobas világos konyhás lakást. Fűtése gazkonvektoros fűtésű ill. cserépkályha. A ház belső udvarában lehetőség parkolót bérelni, havi 8000ft-ért. Közös költség 10eft. Kiváló a közlekedés, 7es busz család és Bosnyák tér setatavolsagra. Tehermentesítés 2 hónap.
https://ingatlanok.hu/elado/lakas/budapest-xiv-ker/57-millio-ft;51-negyzetmeter;2-szoba;tegla-epitesu/11572427