Az értékesítő:
Csóka Annamária
+36 30 445 1132

Eladó telek/földterület Budapest XIV. ker, 450 000 000 Ft, 1 077 Négyzetméter

450 000 000 Ft
telek/földterület, 1 077 Négyzetméter
Azonosító:
11572489
Értékesítés típusa:
eladó
Ingatlan típusa:
telek/földterület
Jelleg:
Belterület
Település:
Budapest XIV. ker
Telekterület:
1077
Ár:
450 000 000 Ft
Telekterület típusa:
Négyzetméter
Víz:
Telken belül
Gáz:
Telken belül
Villany:
Telken belül
Csatorna:
Telken belül
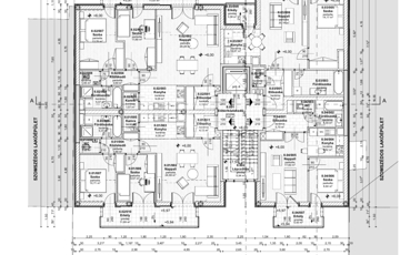
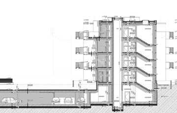
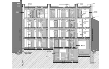
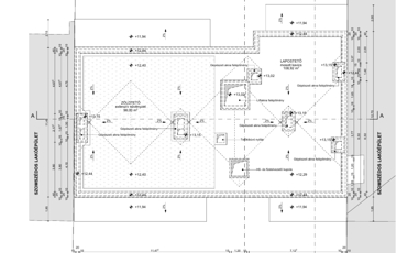
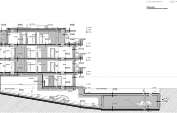
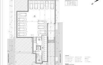
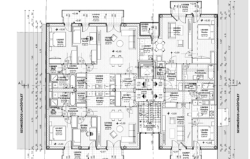
Zuglóban, frekventált helyen eladó fejlesztési telek engedélyezett, 13 lakásos társasház projekttel! Eladó egy 1077 m²-es építési telek Zugló egyik legkeresettebb részén, érvényes építési engedéllyel rendelkező, prémium társasházprojekttel! A tervezett beruházás jellemzői: -13 lakás 4 szinten, jól átgondolt alaprajzokkal -Pinceszinten 13 gépkocsibeálló -Lift -Külön tárolók a lakók részére -Közös helyiségek (pl. babakocsi-/kerékpártároló) -Erkélyek, teraszok, valamint tetőteraszos lakások -Zöldtető, környezetbarát és esztétikus kialakítással -Korszerű műszaki tartalommal és energiatakarékos megoldásokkal tervezve Elhelyezkedés: A projekt Zugló frekventált, jól megközelíthető részén található, csendes utcában, de közel tömegközlekedéshez, bevásárlási lehetőségekhez, iskolákhoz és egyéb szolgáltatásokhoz. A projekt előnyei: -Azonnal induló beruházás – engedélyezett tervek -Magas hozamú, jól értékesíthető lakások -Kimagasló lokáció és műszaki tartalom -Kiváló lehetőség fejlesztők, befektetők számára A hirdetésben feltüntetett adatok és információk csak tájékoztató jellegűek, jogi kötelezettséggel nem bíró jognyilatkozatnak minősülnek, mely nem tekinthető ajánlat tételnek és nem járnak az eladóra nézve kötelező ajánlati kötöttséggel. Amennyiben felkeltettem az érdeklődését vagy bármely további kérdése lenne, keressen bizalommal. Akár hétvégén is! CSA
https://ingatlanok.hu/elado/telek_foldterulet/budapest-xiv-ker/450-millio-ft;1077-negyzetmeter;epitesi-telek-besorolas;van-kozmu/11572489