Az értékesítő:
Fenyvesi Marianna
+36 20 981 3790

Eladó lakás Pécel, 98 000 000 Ft, 101 négyzetméter

98 000 000 Ft
lakás, 101 négyzetméter
Építőanyag:
Tégla
Egész szobák:
3
Komfort fokozat:
Összkomfort
Ingatlan állapota:
Kitűnő
Azonosító:
11572524
Értékesítés típusa:
eladó
Ingatlan típusa:
lakás
Település:
Pécel
Alapterület:
101
Ár:
98 000 000 Ft
Tulajdonviszony:
Saját
Emelet:
Földszint
Fűtés jellege:
Cirkó
Kilátás:
kertre néző
Építési év:
Új építésű
Erkély:
Van
Pince:
Nincs
Tároló:
Van
Lift:
Nincs
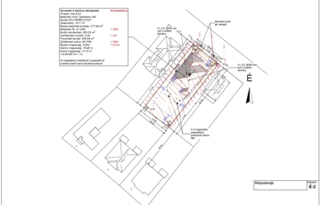
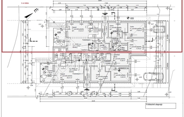
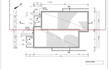
CSAK NÁLUNK! Pécel, kedvelt Levendulás lakóparkjában, eladó egy nettó 101,46 m², bruttó 110,56 m² alapterületű, 2 lakásos lakóépület 1-es lakása. A lakásokat, aszfaltos úton lehet megközelíteni. Az építkezés, várhatóan 2026 március végén kezdődik. A 101,46 m²-es lakótérben 3 szoba + nappali szoba biztosít kényelmes életteret a jövőbeli lakóknak. A házhoz tartozik egy ~508 m²-es saját kert, ami tökéletes helyszín családi és baráti összejövetelekhez. A 11,28 m²-es teraszról ( alatta 9,1 m²-es tároló) gyönyörű kilátás nyílik a környező tájra. A lakások szimmetrikus belső elrendezéssel kerültek megtervezésre, földszintes kialakítással, illetve részleges szuterén beépítéssel. A lakások az oldalkerti homlokzatok közepén lévő bejáratokon közelíthetők meg. Rövid műszaki tartalom: - Az épület földszinti és emeleti külső határoló falai 30 cm vastag Porotherm 30 X-Therm falazó blokkból, úgynevezett klíma téglából készülnek. - A külső körítő falak külső oldalai 15 cm grafitos EPS (H 80) hab hőszigetelő vakolatot kapnak. - A tetőtér hőszigetelése, fújt hőszigetelő hab, kb. 45 cm vastag kőzetgyapotnak fele meg. - A válaszfalak 10 N+F Porotherm válaszfal lapokból falazott 10 cm vastag falszerkezetek. - A külső nyílászárók, fehér színben gyártott műanyag 3 rétegű, hőszigetelő üvegezéssel ellátottak (U= 0,9 W/m2K) ablakok lesznek. - A meleg víz ellátást és a fűtést gáz kondenzációs kazán biztosítja majd, padlófűtés hűleadással. Az alternatív fűtésről és hűtésről, KLÍMA fog gondoskodni. A tervezet áram kapacitás 3 x16 A lesz. Felár ellenében H-tarifás óra kérhető! Helységlista: - Földszint: - 4,48 m² belépő , - 7,59 m² közlekedő, - 12,12 m² szoba I., - 11,68 m² szoba II. , - 12,25 m² szoba III., - 4,80 m² fürdő, - 1,44 m² WC, - 3,68 m² gardrób, - 3,27 m² háztartási helység, - 31,03 m² nappali, - 9,12 m² konyha étkező - ----------------- 101,46 m² Nyitott terasz 11,28 m² A terasz alatt szuterén tároló 9,10 m² lesz. A kert durva tereprendezéssel lesz átadva. Műszaki tartalom: -Hideg burkolat 6.000 Ft/m² -Meleg burkolat 5.000 Ft/m² -Szaniterek 200.000 Ft-ig -Beltéri ajtók 60.000 Ft, kilinccsel együtt /db Magasabb árú építőanyag választás esetén a különbözetet a Vevő finanszírozza. Az ár tartalmazza még: - H-tarifa óra előkészítését, az órát és a dobozt nem. - Kapumozgató elektronika előkészítését, - Riasztó előkészítését. A berendezések kiépítése opcionálisan, plusz pénzért megrendelhetők. A belső VÁLASZFALAK, MÉG MÓDOSÍTHATÓK! A Kivitelező a műszaki tartalom változtatás jogát fenntartja, az előírt energetikai előírások figyelembe vételével. A Cég számos referenciával rendelkezik. Komoly érdeklődés esetén szívesen mutatunk referenciát! Ne hagyja ki ezt a lehetőséget, legyen Ön az új ikerház tulajdonosa Pécelen! Finanszírozás 40 - 50 % önerő. Várható átadás: 2027 III. -IV. negyedév JÖJJÖN el, NÉZZE meg, SZERESSEN bele! A GV HitelCentrum, KÖTELEZETTSÉG MENTESEN és DÍJMENTESEN, versenyezteti Önért a bankok hitelajánlatait. Ismerje meg a vissza nem térítendő állami támogatásokat! * Egyedi, bankfiókban nem elérhető kamat- és díjkedvezmények. * Ingyenes Hitelképesség vizsgálat. * Idő, energia és pénz megtakarítás. * Teljes hivatali ügyintézés. * Babaváró. * CSOK+ * Hitel. * Megtakarítás, * és EGYÉB BANKI tranzakcióban segítségére lehetünk! • Igény esetén, ÜGYVÉDI segítséget nyújtunk, MEGFIZETHETŐ áron! Ha az ingatlannal kapcsolatban bővebb felvilágosításra lenne szüksége, hívjon bizalommal, állok rendelkezésére! F.M.
https://ingatlanok.hu/elado/lakas/pecel/98-millio-ft;101-negyzetmeter;4-szoba;tegla-epitesu/11572524