Az értékesítő:
Káplár Márk
+36 30 733 9037

Eladó lakás Tata, 78 900 000 Ft, 94 négyzetméter

78 900 000 Ft
lakás, 94 négyzetméter
Egész szobák:
4
Ingatlan állapota:
Azonosító:
11572554
Értékesítés típusa:
eladó
Ingatlan típusa:
lakás
Település:
Tata
Alapterület:
94
Ár:
78 900 000 Ft
Emelet:
3. emelet
Fűtés jellege:
Cirkó
Erkély:
Nincs
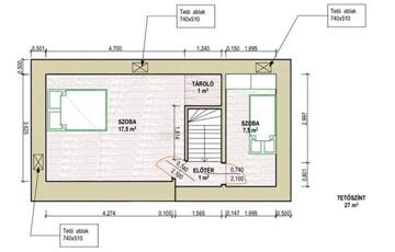
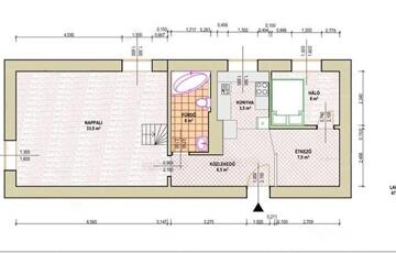
Eladó lakás Tata – Baji úton A tatai Baji út környéke a város egyik legkedveltebb része, ahol a nyugodt lakókörnyezet és a kiváló elhelyezkedés találkozik. Néhány perc sétára található az Olimpiai Edzőtábor és a Tatai-tó partja, amelyek a kikapcsolódást és a természet közelségét biztosítják. ________________________________________ Környék jellemzői • Eredetileg „tiszti lakótömbökként” épült, ezért rendezett, minőségi és értékálló a beépítés • Biztonságos, csendes városrész, barátságos lakóközösséggel • Iskola, óvoda, boltok, buszmegálló és szolgáltatások gyalogosan is könnyen elérhetők • A Tatai-tó közelsége mindennapi kikapcsolódást és természetközeli életet kínál ________________________________________ Ingatlan adatai • Épület szerkezete: tégla építésű • Elhelyezkedés: 3. emelet, tetőtér-beépítéses • Alapterület: tágas, jól kihasznált lakótér • Helyiségek száma: 2 szoba + 2 félszoba ________________________________________ Főbb jellemzők és előnyök • 33,5 m²-es nappali – a lakás központi élettere, étkezővel • Kovácsoltvas korlátos lépcső a tetőtérbe, alatta praktikus tároló • Gépesített U alakú konyha szép kilátással • Nagyméretű, kádas fürdőszoba • Tágas előtér • Földszinten egy hálószoba • Tetőtérben két szoba, az egyikben külön fürdőszoba kialakítható (közmű előkészítve) • Modern burkolatok és dizájnos mennyezeti lámpák • Műanyag nyílászárók redőnnyel felszerelve • Beltéri ajtók jó minőségű, tömör fa kivitelben • Észak-nyugati fekvés: kellemes természetes fény a délutáni órákban • Minden ablakból esztétikus panoráma ________________________________________ Műszaki állapot és épület • Az épület tégla szerkezetű, homlokzati szigetelése és a tető felújítása korábban megtörtént • A lakáson belüli villamoshálózat korábbi felújítása során korszerűsítve lett. • A közös elektromos hálózat (lépcsőházi felszálló vezetékek) felújítása korábban megtörtént. • Fűtés: gázkazán, lapradiátoros hőleadókkal • Saját, külön tároló tartozik a lakáshoz ________________________________________ Összegzés: A Baji út környéke Tata egyik legkedveltebb városrésze. A Tatai-tó közelsége, a rendezett környezet és a kiváló infrastruktúra miatt ez az ingatlan ideális választás családoknak és mindazoknak, akik nyugodt, biztonságos környezetben, mégis a város közelségében szeretnének élni. A lakás alacsony fenntartási költségű és a közös költség mindössze 10.000 forint, így hosszú távon is gazdaságos és kényelmes otthon. Érdeklődni: Káplár Márk Erik kaplar.mark@dot-ing.hu +36 30 733 9037 Pénzügyi megoldások egy kézből Segítünk eligazodni a banki ajánlatok között – 18 pénzintézet konstrukciói alapján közösen megtaláljuk az Ön helyzetéhez leginkább megfelelőt. Családtámogatások és kedvezményes hitelkonstrukciók igénylése gördülékenyen, teljes körű ügyintézéssel. Szakértő jogi partnerünk garantálja a szerződéskötés biztonságát és a jogi folyamatok zökkenőmentességét.
https://ingatlanok.hu/elado/lakas/tata/79-millio-ft;94-negyzetmeter;4-szoba;nincs-megadva-epitesu/11572554