Az értékesítő:
Szűcs Adrienn
+36 70 698 5169

Eladó családi ház Zamárdi, 89 990 000 Ft, 136 négyzetméter

89 990 000 Ft
családi ház, 136 négyzetméter
Építőanyag:
Tégla
Egész szobák:
4
Komfort fokozat:
Összkomfort
Fűtés módja:
Gáz
Ingatlan állapota:
Azonosító:
11572684
Értékesítés típusa:
eladó
Ingatlan típusa:
családi ház
Jelleg:
Családi ház
Település:
Zamárdi
Alapterület:
136
Telekterület:
444
Ár:
89 990 000 Ft
Szintek száma:
1 szint
Fűtés jellege:
Cirkó
Kor:
11-20 éves
Erkély:
Van
Telekterület típusa:
négyzetméter
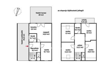
A Balaton déli partján, Zamárdiban 136 m2-es 4 hálószobás ház eladó. A város zöldövezeti részén, 444 m2-en telken fekvő kétszintes ház földszinti helyiségei: amerikai konyhás nappali, fedett terasz, háló, fürdő, wc. Az emeleten 3 háló, fürdőszoba, wc és egy jelenleg tároló/gardrób szobaként funkcionáló helyiség, amiből igény esetén még egy szoba kialakítható. A 25 m2-es fedett autóbeálló beépítésére is van lehetőség. Az emeleten egy szoba erkélyre nyílik, a földszinten az amerikai konyhás nappali pedig terasz kapcsolatos. A szomszédos egységeket dupla 38 cm-es Porotherm tégla választja el, a két egység között légréssel, így az ingatlan teljesen szeparált. A ház 2005-ben épült, azóta többszöri felújításon esett át, kívül-belül jó állapotú. Automata kapunyitás és riasztó vezetékes előkészítése megtörtént. Fűtéséről cirkó gázkazán gondoskodik, radiátoros hőleadással, az emeleten hűtő-fűtő klíma biztosítja a kellemes hőmérsékletet. A lakótér alapterülete 109 m2, a terasz, erkély, autóbeálló 50%-kal került beszámításra. Családi házas, nyugodt környék. A közelben iskola, orvosi rendelő, élelmiszerbolt. A Balaton- parttól 1,5 km távolságra található az ingatlan. Lakóingatlan vásárláshoz az OTP bank pénzügyi termékeivel hitel, CSOK ügyintézésben vevőinknek segítséget adunk! Otthon Start Hitelprogram. Megtekintésért, további információért kérem hívjon! Referencia szám: M314006
https://ingatlanok.hu/elado/haz/zamardi/90-millio-ft;136-negyzetmeter;6-szoba;cirko-futes/11572684