Az értékesítő:
Lestyán László Józsefné Lakati Melinda
+36 70 455 0967

Eladó családi ház Kőröshegy, 85 000 000 Ft, 142 négyzetméter

85 000 000 Ft
családi ház, 142 négyzetméter
Építőanyag:
Tégla
Egész szobák:
6
Komfort fokozat:
Komfort
Fűtés módja:
Gáz
Ingatlan állapota:
Átlagos
Azonosító:
11572685
Értékesítés típusa:
eladó
Ingatlan típusa:
családi ház
Jelleg:
Családi ház
Település:
Kőröshegy
Alapterület:
142
Telekterület:
604
Ár:
85 000 000 Ft
Szintek száma:
1 szint
Fűtés jellege:
Cirkó
Kor:
21-50 éves
Telekterület típusa:
négyzetméter
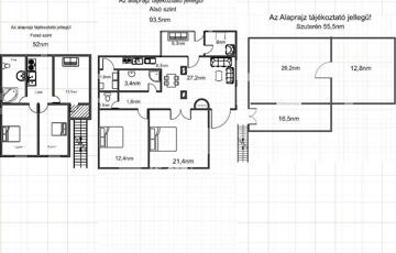
Balaton déli part: Kőröshegyen ELADÓ egy 142 nm-es két generációs családi ház. A 604 nm-es telken fekvő, családi ház, amely ideális választás lehet nagycsaládosoknak vagy akár befektetés céljából is. A kétszintes ingatlan két önálló, külön bejáratú lakórésszel rendelkezik. Az alsó, 91 nm-es lakrészben két hálószoba, tágas amerikai konyhás nappali étkezővel, kamra, zuhanyzós fürdőszoba és külön mellékhelyiség található. A nappaliban egy hangulatos cserépkályha gondoskodik a kellemes téli hangulatról, a hátsó udvar felé pedig egy világos télikert nyílik, amelyből egy külön szoba is elérhető tökéletes vendég- vagy dolgozószobának. Az alsó szint két bejárattal rendelkezik, egyik az utcafrontra, a másik az udvarra nyílik. A felső, 51 nm-es lakrész teljesen külön bejáratú, így akár kiadásra, akár nyaralóként is remekül hasznosítható. Két hálószoba, nappali, konyha és egy tágas fürdőszoba kapott benne helyet, a bejárat előtt pedig egy kis, kb. 2 nm-es teraszrész alkalmas a dohányzók részére. A ház alatt egy 55 nm-es, kisablakos szuterén található, amely három helyiségből áll, így tárolásra, konditeremnek vagy hobbiszobának is kiválóan alkalmas. A fűtésről gázkazán gondoskodik, a két lakrész pedig külön villany és vízórával ellátott. A villanyvezetékek, vízhálózat és padlóburkolatok 2016-ban teljeskörűen cserélve lettek, így a ház műszakilag is jó állapotban van. Az udvar rendezett és tágas, több autó parkolására alkalmas, valamint fedett kocsibeálló is rendelkezésre áll. A környéken buszmegálló, bevásárlóközpont, éttermek, gyógyszertár, játszótér, hétvégi piac, valamint templom is található. Csendes környezet, kiváló közlekedés és a Balaton közelsége teszi igazán vonzóvá ezt az ingatlant. A Balaton (Szántódi Szabad-strand, Balatonföldvári Szabad-strand) kb. 10 perc autóútra található az ingatlantól. Az M7 autópálya felhajtó pár perc autóúttal megközelíthető. A lokáció egyik hatalmas előnye, a Szántódi komp kikötő, amivel 8 perc alatt már az Északi part nyújtotta lehetőségeket is élvezhetjük. További információkért keressen elérhetőségeimen. Referencia szám: M315029
https://ingatlanok.hu/elado/haz/koroshegy/85-millio-ft;142-negyzetmeter;7-szoba;cirko-futes/11572685