Az értékesítő:
Csörnyei Tamás
+36 20 996 6669

Eladó családi ház Ács, 38 000 000 Ft, 108 négyzetméter

38 000 000 Ft
családi ház, 108 négyzetméter
Egész szobák:
2
Ingatlan állapota:
Azonosító:
11572721
Értékesítés típusa:
eladó
Ingatlan típusa:
családi ház
Jelleg:
Családi ház
Település:
Ács
Alapterület:
108
Telekterület:
1151
Ár:
38 000 000 Ft
Fűtés jellege:
Cirkó
Terasz:
Nincs
Erkély:
Nincs
Telekterület típusa:
négyzetméter
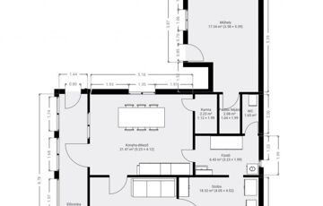
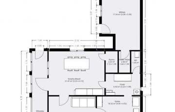
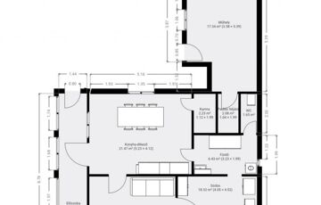
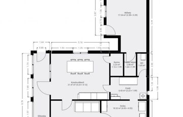
Ácson, 1150 m2-es, két utcafronttal rendelkező telken elhelyezkedő, 82,7 m2- es lakótérrel (konyha-étkező + két szoba), ezen felül, műhellyel, picével, tároló helyiséggel, garázzsal rendelkező, tégla építésű, gáz központi fűtéses lakóház eladó. Ár: 38.000.000,-Ft Érd.: 06-20/9-966-669 Eladó Ács csendes, rendezett utcájában ez a kiváló adottságú, téglaépítésű családi ház, amely 1150 m²-es telken helyezkedik el. Az ingatlan ideális választás mindazoknak, akik nyugodt környezetben szeretnének élni, ugyanakkor fontos számukra a kiváló infrastruktúra és a jó közlekedés. Az 1150 m²-es két utcafronttal rendelkezik, így két oldalról is megközelíthető Az épület alaprajza a fotók között megtalálható. A lakóház 82,7 m2 alapterületű, ahol az előszobán kívül konyha-étkező, 2 szoba, fürdőszoba és kamra kapott helyet. A lakótér alatt 33,5 m2-es pince található, ahol kazánház helyezkedik el, de mellette bőven marad tárolásra alkalmas tér. A lakóház folytatásában egy 12,6m2-es zöldség tároló és az egyik műhely, ami 17 m2-es és 3m-es belmagassággal rendelkezik. A műhely mellett 16,4 m2-es garázs található, felette pedig egy hobby szoba. A másik műhely a lakóháztól távolabb helyezkedik el, 31,6 m2-es, 2,8 m-es belmagassággal. A műhelyek ipari árammal rendelkeznek. Az épületek 1964 és 1980 között épültek, tégla falazattal, jó statikai állapotban vannak. A fűtést gázkazán és vegyes tüzelésű kazán szolgáltatja radiátoros hőleadással, a melegvizet pedig villany bojler. A konyha-étkezőben egy levegő-levegő hőszivattyú (klíma) biztosítja az alternatív fűtési lehetőséget és igény szerint a nyári hűtést. Ács előnyei: Ács Komárom-Esztergom vármegye egyik dinamikusan fejlődő kisvárosa, Győr és Komárom között, az M1-es autópályától alig pár percre. A település folyamatos fejlődésének köszönhetően Ácson egyre több munkahely válik elérhetővé az ipari park bővülése miatt, így az ingatlan ideális választás lehet azok számára is, akik stabil munkahelyet keresnek a közelben. A város kiváló választás családoknak és ingázóknak egyaránt: óvoda, iskola, orvosi rendelő, bevásárlási lehetőségek és vasútállomás is a közelben. A környék nyugodt, barátságos lakóövezet. A vásárláshoz teljes körű hitel ügyintézést biztosítunk!
https://ingatlanok.hu/elado/haz/acs/38-millio-ft;108-negyzetmeter;2-szoba;cirko-futes/11572721