Az értékesítő:
Unger-Takács Anikó
+36 70 235 7733

Eladó lakás Vámosszabadi, 56 070 000 Ft, 50 négyzetméter

56 070 000 Ft
lakás, 50 négyzetméter
Építőanyag:
Tégla
Egész szobák:
2
Komfort fokozat:
Összkomfort
Ingatlan állapota:
Szerkezetkész
Azonosító:
11572818
Értékesítés típusa:
eladó
Ingatlan típusa:
lakás
Település:
Vámosszabadi
Alapterület:
50
Ár:
56 070 000 Ft
Fűtés jellege:
Hőszivattyú
Erkély:
Van
Erkély mérete:
13.00 m2
Kert mérete:
3.00 m2
Kertkapcsolat:
Nincs
Pince:
Nincs
Lift:
Nincs
Klíma:
Nincs
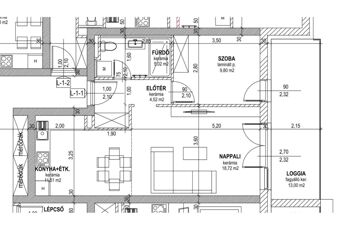
Vámosszabadi Szitásdomb II lakóparkban ajánlom figyelmébe ezt az új projektet: 35 lakásos társasház, 3 szint, prémium anyagok, megbízható kivitelező! Jelen hirdetésben az első emeleten, az L1-1 számú lakást szeretném bemutatni: Az ingatlan 49,57 m²-es lakótérrel rendelkezik, egy 13m2-es erkély kapcsolattal. A lakás jól átgondolt kialakítása magába foglal egy tágas amerikai konyhás nappalit, egy hálószobát, előszobát és egy fürdőszobát. A pontos elrendezését a fotók között feltöltött alaprajz mutatja be. A lakás emeltszintű fűtéskész állapotban kerül átadásra, így a befejezés az Ön a saját elképzelése szerint valósulhat meg. Az épületről: - teherhordó- és térelhatároló falszerkezetek: POROTHERM 30 N+F falazóelem - lakáselválasztó teherhordó falazat: LEIERTHERM 25/30 AKU hanggátló tégla - válaszfalak: POROTHERM 10 N+F falazóelem, 10 cm vastagságban - homlokzati hőszigetelés: 15 cm AUSTROTHERM AT-H80 - homlokzati nyílászárók: VEKA 76AD kívül-belül fehér szerkezetek, redőnnyel - fűtés központilag, levegő-víz hőszivattyú teleppel, hőleadás mennyezetfűtéssel, klimatizálás mennyezet hűtéssel biztosított - lakások egyedi hőmennyiségmérővel, szobatermosztáttal, fürdőszobában padlófűtéssel, törölközőszárítóval A lakáshoz opcionálisan vásárolható tároló helyiség, illetve felszíni parkoló is. Várható átadás: 2026. ősz Az ingatlan elhelyezkedése kiváló, hiszen Győr központja és az autópályafelhajtó is könnyen elérhető. Új, modern házakkal beépített környék, a városi és vidéki buszközlekedés is elérhető. Ha egy modern, saját igényei szerint alakítható otthont keres, amely csendes, mégis jól megközelíthető helyen található a városhoz közel, akkor hívjon! Több szabad lakás is van még a projektben, ha ez pont nem az igényeinek megfelelő, mutatom a többit is! További információért és megtekintésért keressen bizalommal. (További képekért és információkért kérem hívjon!)
https://ingatlanok.hu/elado/lakas/vamosszabadi/56-millio-ft;50-negyzetmeter;2-szoba;tegla-epitesu/11572818