Az értékesítő:
Meszesánné Márki Ildikó
+36 20 388 3540

Eladó családi ház Gyál, 113 900 000 Ft, 122 négyzetméter

113 900 000 Ft
családi ház, 122 négyzetméter
Építőanyag:
Tégla
Egész szobák:
4
Ingatlan állapota:
Kitűnő
Azonosító:
11573073
Értékesítés típusa:
eladó
Ingatlan típusa:
családi ház
Jelleg:
Ikerház
Település:
Gyál
Alapterület:
122
Telekterület:
574
Ár:
113 900 000 Ft
Fűtés jellege:
Hőszivattyú
Terasz:
Van
Erkély:
Nincs
Beépíthető tetőtér:
Nincs
Melléképület:
Nincs
Pince:
Nincs
Klíma:
Van
Telekterület típusa:
négyzetméter
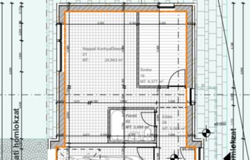
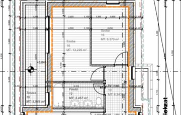
Eladó 4 szobás új építésű ikerház Gyál csendes, zöldövezeti részén! Ez a kivételes ingatlan 122 m² lakótérrel és és 201 m2-es saját kerttel várja új tulajdonosát a város egyik kedvelt, nyugodt utcájában. A ház belső szintes kialakítása maximálisan kihasználja a teret, kulcsrakész állapotának köszönhetően pedig az átadást követően 2026. lll. negyedévben költözhető. A ház négy kényelmes szobával, egy tágas nappalival, valamint két modern fürdőszobával rendelkezik. Az amerikai konyha prémium anyagokból készült, így ideális helyszínt nyújt a családi étkezéseknek és baráti összejöveteleknek. A nappaliból közvetlen kertkapcsolat nyílik a parkosított udvarra. Az emeleti szobához panorámás erkély 9 m2 is tartozik. Műszaki tartalom és felszereltség: - Monolit vasbeton lemezalap, vízzáró rendszerrel - Falazat hő és hangszigetelt 30 cm Leier külső falazat, Silka hanggátló elválasztó fallal - Homlokzati hőszigetelés: 12 cm dryvit rendszer - Földrengésbiztos födémrendszer: 25 cm vastag monolit vasbeton födém, az emelet feletti zárófödém is monolit vasbeton szerkezettel készül. - Tetőtér szigetelése 20 cm üveggyapot a födémen - Tetőszerkezet: Bramac betoncserép fedéssel, bádogozás korrózió mentes színezett alumínium lemez, - Nyílászárók: 3 rétegű üvegezésű, kívül aranytölgy-belül fehér színű műanyag ablakok - belső ajtók CPL fóliás felülettel, utólagosan szerelhető tokkal, katalógusból választható színben és ajtólappal, belső párkányok műanyag, külső párkányok alumíniumból készülnek. - Bejárati ajtó : MABISZ minősítésű biztonsági ajtó - Fűtés-hűtés: korszerű monoblokkos hőszivattyús rendszer, padlófűtéssel és fal-coil egységekkel - Árnyékolástechnikai előkészítés: vakolható redőnyszekrények, hőszigetelt alumínium redőny, színe megegyezik az ablakok külső színével, szúnyoghálóval - Válaszfalak: 10 cm Porotherm/ Leier ,Silka hanggátló tégla elválasztó falak - Választható burkolatok , belső ajtók, szaniterek a műszaki tájékoztató szerint - A lakásban a festés színe fehér. - Az épület bejáratánál kaputelefon kerül felszerelésre, amely a beszélgetésen kívül az elektromos ajtózár működtetést is biztosítja a lakásból. - A használati melegvíz ellátása a levegő-víz hőszivattúval fűtött közvetett tárolóval.. - A hőszivattyú a lakások fűtéséről gazdaságosan gondoskodik a padló fűtésnek köszönhetően. A fürdőkben elektromos törölközőszárító radiátor kerül elhelyezésre. - A fűtéshez/ hűtéshez kiegészítő oldalfali fan cool is kapcsolódik a hálókban és a nappaliban. Igény esetén felár ellenében helyiségenkénti vezérlés és okos otthon rendszer alakítható ki. - A riasztó előkészítése minden lakáshoz biztosított. - Lakásonként önálló villanyóra - LED világítás , redőnymotor előkészítés - Elektromos garázskapu, -Optikai internetkábel előkészítés - Saját parkosított kert használati megosztással, - 6 cm vastag térkő burkolat, kocsibeállóval Az ingatlanhoz garázs lehetőség is tartozik, amely kényelmes parkolást biztosít. Ne hagyja ki ezt a remek lehetőséget, hogy egy igazán különleges otthon tulajdonosa lehessen Gyál csendes ,rendezett környékén! Keressen bizalommal a további részletekért és a megtekintés időpontjának egyeztetéséért! (További képekért és információkért kérem hívjon!)
https://ingatlanok.hu/elado/haz/gyal/114-millio-ft;122-negyzetmeter;4-szoba;hoszivattyu-futes/11573073