Az értékesítő:
Borbély Gáborné
+36 20 250 8749

Eladó családi ház Görcsöny, 98 000 000 Ft, 134 négyzetméter

98 000 000 Ft
családi ház, 134 négyzetméter
Építőanyag:
Tégla
Egész szobák:
4
Komfort fokozat:
Összkomfort
Fűtés módja:
Hőszivattyú
Ingatlan állapota:
Épülő
Azonosító:
11573164
Értékesítés típusa:
eladó
Ingatlan típusa:
családi ház
Jelleg:
Családi ház
Település:
Görcsöny
Alapterület:
134
Telekterület:
995
Ár:
98 000 000 Ft
Szintek száma:
Földszintes
Fűtés jellege:
Villany
Kor:
Új építésű
Erkély:
Van
Telekterület típusa:
négyzetméter
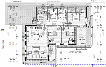
EGYEDI LEHETŐSÉG, KIEMELT MŰSZAKI TARTALOM!!! Görcsönyben eladó 134 nm-es egy szintes lakótérrel rendelkező, tágas amerikai konyha-nappali+ 3 szoba elosztású, hőszivattyús rendszerrel (padlófűtéssel) fűtött, klímás, új építésű tégla ház, 2 terasszal, 995 nm-es telken.Eladó ez a kivételes, új építésű, prémium műszaki tartalommal rendelkező családi ház, amely a legmagasabb energetikai és kényelmi elvárásoknak is megfelel. Az ingatlan 134 m2 lakóterű, ideális választás családok számára, akik nyugodt, minőségű otthont keresnek.Tágas nappali, 4 külön nyíló szoba, ((amerikai konyha-nappali-étkező + 3 hálószoba), 2 gardrób, nagy előszoba, kertkapcsolatos terasz, letisztult modern építészeti megoldások, parkosított kert lehetőségével.A projekt előfinanszírozással megvásárolható!Ez lehetőséget biztosít arra, hogy már az építés során személyre szabd az otthonod - választhatsz burkolatokat, színeket, vagy akár kisebb alaprajzi módosításokat is a kivitelezés fázisától függően.Lakások főbb jellemzői:- tágas teraszok- 3 lakáshoz SAJÁT KERTKAPCSOLAT- MINŐSÉGI ANYAGOKBÓL történik a kivitelezés- Wienerberger Porotherm 30 N+F téglat+ 15 cm-es grafitos hőszigetelés- HŐSZIVATTYÚS FŰTÉSRENDSZER, PADLÓFŰTÉSSEL- BELSŐ KIALAKÍTÁS VEVŐ KÉRÉSRE MÉG MÓDOSÍTHATÓ- Burkolatok, szaniterek egyedi igények szerint választhatókAz ingatlan várható átadása: 2026 ősz!CSOK és egyéb állami támogatások igénybe vehetők!A kulcsrakész vételár: 98 M FtAz ár kulcsrakész állapotban történő átadással értendő, konyhabútor és lámpatestek nélkül! Érd.: Borbélyné Szőke Andrea +36/20-250-8749
https://ingatlanok.hu/elado/haz/gorcsony/98-millio-ft;134-negyzetmeter;4-szoba;villany-futes/11573164