Az értékesítő:
Kristóf László
+36 20 805 2028

Eladó családi ház Dömsöd, 99 990 000 Ft, 72 négyzetméter

99 990 000 Ft
családi ház, 72 négyzetméter
Építőanyag:
Rönk
Egész szobák:
3
Komfort fokozat:
Dupla komfort
Ingatlan állapota:
Kitűnő
Azonosító:
11573325
Értékesítés típusa:
eladó
Ingatlan típusa:
családi ház
Jelleg:
Családi ház
Település:
Dömsöd
Alapterület:
72
Telekterület:
715
Ár:
99 990 000 Ft
Fűtés jellege:
Egyéb
Telekterület típusa:
négyzetméter
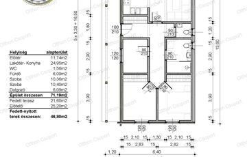
Dunaparti meseház Prémium minőség a természet ölén Dömsöd csendes, kisvárosias, Duna-parti részén járunk. A léleknyugtató környezetbe harmonikusan illeszkedő szemrevaló ház ragadja meg a tekintetet. Ezt a hangulatos meseházat is Németh József, a ráckevei mester alkotta a jól bevált rönkház-jellegű technológiával. Németh József Amerikában tanulta ki a faépítészetet, de ezt a különleges technológiát, amely egyesíti a rönkház és a kiválóan szigetelt könnyűszerkezetes értékeit, ő maga kristályosította ki. Így ez a dömsödi faház egy AA+ energetikai besorolású, a tetőterében is dupla szigeteléssel ellátott, energiahatékony épület. A nyílászárók is tripla üvegezésűek. Ugyanakkor a ház különlegessége a fa látható szépsége, bársonyos tapintása, a belső terekben a finom faillat varázsa. Az épületre 30 éves kivitelezői garanciát vállaltak! László, a tulajdonos egy természetszerető ember, erre a jókora vízparti telekre el sem tudott volna képzelni mást, mint egy ilyen hangulatos, természetes életteret biztosító rönkházat. A Duna mindössze néhány méterre van, igazi horgászparadicsom ez a nyugalmas, zöldellő partvonal.  A szép nagy kertben egy hangulatos szaletlit és gondozott gyepszőnyeget látunk. A ház első részébe tágas, szépen ácsolt teraszt építettek ki, ami tavasztól őszig nagyszerű lehetőség a kinti életre. Belépve, az első érdekesség, hogy nem rönk, hanem fehérre festett falak várnak. Ez azért is praktikus, mert sima falaknál könnyebben megvalósítható a lakberendezés és a fehér színtől világosabb az enteriőr Jó a ház elosztása is, tágasak a terek. Konyha-nappali-étkezőt, 3 hálószobát, 2 WC-t és egy fürdőszobát látunk épített zuhannyal. A gépészetre különösen ügyeltek, a tetőn napelemes rendszer van, hűtő-fűtő klíma biztosítja a komfortos belső mikroklímát. A ház még szinte teljesen üresen áll, a beépített konyhabútor és a fürdőszoba viszont már tetszetős kialakítású. Hogy miért üres? Várja ugyanis jövendő tulajdonosát, aki majd az ízlése szerint berendezi. Az ideális helyszín, az igényes épület, a kertben rejlő lehetőségek ideálisak természetszerető, nyugalomra és abszolút kényelemre vágyóknak. Aki szeretnek alacsony rezsivel, magas életminőséggel garantált házban élni. ………………………………………………………………………………………… A ház adatai: - Vízpart, rekreációs lehetőségek, csendes, kertvárosi zöldövezet - A telek 715 m², udvari beállóval, szaletlivel, térkövezés, gyepszőnyeg   -Ház hasznos alapterülete 71,19 m², (össz-alapt.: 114 m²),  terasz: m², - energiahatékony: AA+ energetikai besorolás - gépészet: napelempark, hűtő-fűtő klíma - Tető: cseréptető, dupla hőszigeteléssel tetőtér: nincs Az ingatlan vételára 99.990.000ft Hitelezhető. (40 M Ft-ig budapesti, Pest-megyei ingatlant beszámítunk) A 30 év kivitelezői garancia, az éves felülvizsgálat benne van az árban.   Videó az ingatlanról: https://www.youtube.com/watch?v=eEx7JRW_CiQ
https://ingatlanok.hu/elado/haz/domsod/100-millio-ft;72-negyzetmeter;3-szoba;egyeb-futes/11573325