Az értékesítő:
Némethné Zsuzsa
+36 70 412 3861

Eladó családi ház Debrecen, 170 000 000 Ft, 132 négyzetméter

170 000 000 Ft
családi ház, 132 négyzetméter
Egész szobák:
4
Ingatlan állapota:
Kitűnő
Azonosító:
11573502
Értékesítés típusa:
eladó
Ingatlan típusa:
családi ház
Jelleg:
Sorház
Település:
Debrecen
Alapterület:
132
Telekterület:
120
Ár:
170 000 000 Ft
Fűtés jellege:
Cirkó
Terasz:
Nincs
Erkély:
Van
Melléképület:
Nincs
Pince:
Nincs
Parketta:
Nincs
Kábel TV:
Nincs
Telekterület típusa:
négyzetméter
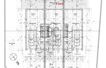
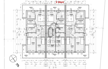
2. lakás: Br. 152 nm - amerikaikonyhás - étkezős nappali (27 nm) - teraszkapcsolat (24 nm) - garázs (15 nm) - vendégmosdó - 3 szoba (10-10-10 nm) - 2 fürdőszoba - gardrób - erkélyek (16 nm) Projekt bemutatása Debrecen kedvelt, Nagyerdőhöz és az Egyetemekhez közeli részén modern, új építésű, extrákkal felszerelt sorház épül, átadása 2026. I. negyedév. Saját kertkapcsolatos otthonok várják tulajdonosaikat 2 szinten. A földszinten amerikaikonyhás - étkezős nappali terasz és kertkapcsolattal, vendégmosdóval és garázzsal. Az emeleten 2 gyerekszoba kádas fürdőszobával, míg a szülői háló saját fürdőszobával és gardróbbal felszerelt. Műszaki tartalmát extrákkal bővítették: - beépített konyhabútor gépesítve (Electrolux) - 2 db elektromos porszívó - vízlágyító berendezés - elektromos redőnyök és kapuk távirányítós vezérléssel - hőszivattyús klímák (h-tarifa) - riasztórendszer - padlófűtés. Tervezze a tavaszt már új otthonában! További részletkért és a megtekintést illetően várom hívását!
https://ingatlanok.hu/elado/haz/debrecen/170-millio-ft;132-negyzetmeter;4-szoba;cirko-futes/11573502