Az értékesítő:
Kuti Andrea
+36 30 231 6522

Eladó családi ház Keszthely, 122 500 000 Ft, 101 négyzetméter

122 500 000 Ft
családi ház, 101 négyzetméter
Egész szobák:
3
Ingatlan állapota:
Átlagos
Azonosító:
11573595
Értékesítés típusa:
eladó
Ingatlan típusa:
családi ház
Jelleg:
Családi ház
Település:
Keszthely
Alapterület:
101
Ár:
122 500 000 Ft
Fűtés jellege:
Cirkó
Kor:
Új építésű
Terasz:
Nincs
Erkély:
Nincs
Telekterület típusa:
négyzetméter
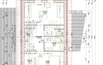
Kedves Érdeklődők, Befektetők Figyelem! Szeretnék figyelmükbe ajánlani egy új, keszthelyi lakóparkot – 300 méterre a Festetics Kastélyhoz -, melynek építése elindult. Ez több ütemben zajlik, melynek első két ikerházának átadását már hamarosan tudjuk biztosítani. Fontos, hogy a belső esztétika: burkolatok, szatinerek, végleges falszín a leendő tulajdonos ízlése szerint legyenek kiválasztva. A keretösszegeket megadjuk, de azok is igényes megoldásokkal kerültek megtervezésre. Ezekről bővebben személyesen. Az ingatlan kivett lakóházként szerepel a tulajdoni lapon, melyek önálló tulajdonjoggal bírnak. A két épület nem függ egymástól, a kettős garázsfalnál érintkeznek, a hozzájuk tartozó telekrészek földmérő által kimérve, ügyvédi megosztási szerződéssel beiktatva a földhivatalban. Közös költség nem lesz, saját használatú telek terület kb. 205 m2. További műszaki tudnivalók: • 30 cm tégla falazat + 15 cm hőszigetelés · Tető héjazata Azzuro égetett, sötétszürke, kerámia tetőcserép · Tetőszerkezete 20 cm-es ásványgyapot hőszigeteléssel · Belső lépcső gipszbetonból készült · Nyílászárók: külső ajtók, ablakok UV stabil, PVC műanyag, 70/80/85 mm-es profilvastagságú 3 rétegű Argon gáz töltésű hőszigetelt üvegezéssel, ROTO vasalattal lettek beszerelve. · A garázs Hörmann szekcionális kapuval van felszerelve, mely természetesen motorizálva van. · A belső ajtók fa tok és dekor ajtólappal választhatóak színnel, üvegezés nélkül eloxált alumínium kilincsekkel. A földszinti nyílászárókra műanyag redőnyök lettek tervezve redőnytök előkészítéssel. · A villanyszerelés a mai szabvány szerint készült, az ingatlanban 3 fázis található. Villamos hálózat 3x25 Amper, 5 kw-os napelem rendszerrel kiegészítve. · A riasztórendszer alapcsatorna kiépítve, a riasztó berendezés felszerelése opcionális. · A nagyobb redőnyök motorizáltak, távirányítóval működtethetők. · Fűtés: Elektromos 9kw-os kazán gondoskodik a ház melegéről. A földszinten padlófűtés formájában, míg az emeleten radiátorok segítségével. A földszinten 1 db hűtő-fűtő klímának lesz előkészítve kiállás. További kiállás esetén felárral. A fürdőszobában kombinált törölköző szárító radiátor lett tervezve, melyet fűtési szezonon kívül is lehet használni az elektromos patron segítségével. · A hasznos beépítettséget meghaladóan a nappaliból egy 14 m²-es, burkolt féltetős terasz nyílik 2 db lépcsős lejárattal a kertbe. Igény esetén lehetőség van felárral klímatikus pergolát kérni a teraszra. · A lakás belső hasznos alapterülete terasszal számolva 101,5 m2, valamint ehhez jön egy tágas hosszú garázs, mely 20.5 m2. Az ingatlanhoz tartozó telek mérete 205 m². Elosztás: Földszint: amerikai konyhás étkezős nappali, kamra, 1 előtér és 1 vendég toalett, lépcsőház, valamint a garázs és a terasz Emelet: 2 szoba (lehetőség van 3 szoba kialakítására), 1 nagyobb fürdő épített zuhanyfülkével, 1 mosókonyha, 1 közlekedő Parkolási lehetőség: egyszer a garázsban, továbbá a garázs előtti saját térkövezett részen. Kiemelendő előnyök: • Rendkívül jó belső elosztás • Kimagaslóan gazdaságos fenntartási költségek • Közvetlen saját kertkapcsolat a lakással • Minden oldalról kőkerítéssel körbekerített, kis létszámú új lakópark • Megközelíthetősége saját használatú magánút zsákutca végén • Kiváló elhelyezkedés: Keszthely turisztikai körzetében, a központ 5-10 perc sétára • 300–1000 m-es körzetben minden elérhető: iskola, óvoda, orvosi rendelő, bevásárlási lehetőség, posta, sétálóutca stb. • Buszmegálló a közelben: Hévíz 15 percenként elérhető busszal, onnan közvetlenül a Balaton-partra lehet jutni idősebbeknek. FONTOS MEGEMLÍTENEM, hogy amennyiben olyan érdeklődő van, aki maga szeretne foglalkozni a burkolatok kialakításával és további fürdőszobai szaniterek megvásárlásával egy későbbi időpontban, úgy lehetőséget adunk az ingatlant emelt szintű szerkezetkészen vásárolja meg 98 millió forintért! Ebben az esetben a leendő tulajdonos végzi a további munkák befejezését! Erről személyesen pontosítunk. Kérem említse meg ebben az esetben, ha élne a lehetőséggel! Keszthely városa idegenforgalmi szempontból rendkívül jelentős. Számos látnivalót kínál (Festetics-kastély, Balaton Múzeum, Csigaparlament, Játékmúzeum, Babamúzeum stb.). Hévíz gyógyfürdője és terápiás lehetőségei főként idősebbek számára vonzóak. A közelben további látványosságok találhatók: Szigligeti vár, Badacsony, Tapolcai Tavasbarlang stb. Az ingatlan tulajdonviszonyai rendezettek! Ha ajánlatunk felkeltette érdeklődését, vagy kérdése van, kérem, forduljon hozzám bármikor bizalommal! Megtekintés előtt videót is tudok küldeni. Előre egyeztetett időpontban mutatjuk az ingatlant. Üdvözlettel: Kuti Andrea
https://ingatlanok.hu/elado/haz/keszthely/123-millio-ft;101-negyzetmeter;3-szoba;cirko-futes/11573595