Az értékesítő:
Göbölyös Judit
+36 70 269 5029

Eladó családi ház Dunaharaszti, 788 000 000 Ft, 11 217 négyzetméter

788 000 000 Ft
családi ház, 11 217 négyzetméter
Azonosító:
11573658
Értékesítés típusa:
eladó
Ingatlan típusa:
családi ház
Jelleg:
Társasház
Település:
Dunaharaszti
Alapterület:
11217
Telekterület:
11217
Ár:
788 000 000 Ft
Kor:
50 évesnél régebbi
Terasz:
Nincs
Pince:
Nincs
Telekterület típusa:
négyzetméter
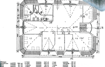
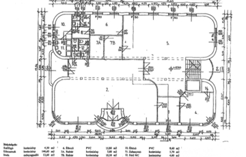
Dunaharaszti iparterületén telephely minősítésű ingatlan, számos felhasználói és fejlesztési lehetőséggel eladó! Kereskedelmi, szolgáltató gazdasági terület, rajta épített háromszintes felépítmény és fejlesztési terület! A 11.217 m2-es sík, teljes közművel ellátott telekterületen elhelyezkedő többfunkciós 1162 m2-es ingatlan mellett, a jelenleg érvényes beépítési szabályzatnak megfelelően igény esetén további építmények elhelyezésének lehetősége adott. A MEGLÉVŐ ÉPÍTMÉNY KISEBB TERÜLETTEL IS MEGVÁSÁROLHATÓ (kb. 6000 nm)! FEJLESZTÉSI LEHETŐSÉG: Az ingatlan Gksz-2 építési övezetbe sorolt. Az építési szabályozás alapján iparitermelő, vagy raktár funkciójú fejlesztésre is alkalmas. Az ingatlan területe 11.217m2, beépíthetősége 45%, így még 5047 m2 építhető be. Az építménymagasság a szomszédos területen kialakult legmagasabb épületekhez igazodik. Az itt álló legmagasabb épületek kb. 10 méteres homlokzatmagasságúak, amely földszint + 2 emeletnek felel meg. Engedélyezett kamion és buszközlekedés! AZ IRODAÉPÜLET FŐBB JELLEMZŐI: - 1162 m2 alapterületű, két szintes (+pince) néhány éve felújított épület (szintenként 380 m2), - Porotherm 38-as falazat, bitumenes zsindely héj, - szintenként korszerű vizesblokk és irodai konyha, - saját hőközponttal rendelkezik az épület + klímák, - tűz és riasztórendszer, - kiépített LAN-kábel hálózat és telefonhálózat, - kerítéssel határolt zöldterület, - parkosított kert, több gépjármű részére biztosított parkoló, AZ INGATLAN ELHELYEZKEDÉSÉNEK ELŐNYEI: A Dunaharaszti ipari park nyújtotta lehetőségek számos előnyt kínálnak. Nagyfeszültségű csatlakozási lehetőség. Fejlett infrastruktúra. A Dunától való távolság lehetővé teszi a vízi közlekedés előnyök kiaknázását. A frekventált ipari park megközelítése aszfaltozott közúton és üzemi úton, M0 autóútról 51-es számú útra letérve, könnyen megközelíthető. Dunaharaszti-Budapest centrum= 20 km Dunaharaszti-M0 autópálya= 2 km. Amivel segítjük az Ön ingatlanvásárlását: - ingyenes hitelügyintézés, - jogi háttér, - földhivatali ügyintézés, - energetikai tanúsítvány, - a vevő számára az ingatlanközvetítés ingyenes. Irodánk 27 éves szakmai tapasztalattal áll ügyfelei rendelkezésére! Várom szíves megkeresését!
https://ingatlanok.hu/elado/haz/dunaharaszti/788-millio-ft;11217-negyzetmeter;0-szoba;nincs-megadva-futes/11573658