Az értékesítő:
Kovács Attila
+36 30 768 7582

Eladó családi ház Törökbálint, 420 000 000 Ft, 261 négyzetméter

420 000 000 Ft
családi ház, 261 négyzetméter
Építőanyag:
Tégla
Egész szobák:
7
Komfort fokozat:
Dupla komfort
Fűtés módja:
Gáz
Ingatlan állapota:
Azonosító:
11573742
Értékesítés típusa:
eladó
Ingatlan típusa:
családi ház
Jelleg:
Családi ház
Település:
Törökbálint
Alapterület:
261
Telekterület:
871
Ár:
420 000 000 Ft
Szintek száma:
1 szint
Fűtés jellege:
Cirkó
Kor:
21-50 éves
Terasz:
Van
Pince:
Nincs
Telekterület típusa:
négyzetméter
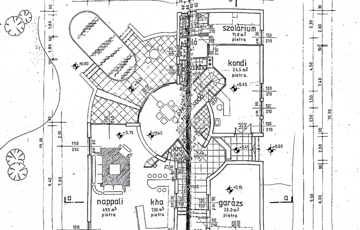
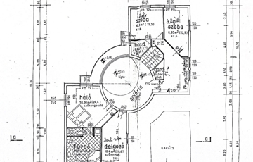
4882. Törökbálint legszebb kertvárosi övezetében a Tükörhegyen, kétlakásos, impozáns enteriőrrel rendelkező, galériás, kiváló állapotú, 7 szobás, riasztóval szerelt, délnyugati fekvésű családi ház garázzsal, hőszivattyús fűtött medencével, parkosított 871 m2-es telken eladó. A kétszintes lakóépület 1999-ben épült Porotherm falazó-, és födémszerkezettel, szigetelt homlokzattal és padlás szigeteléssel, Canadai zsindelyfedéssel. A fűtést és a melegvíz ellátást Ariston gázkazán biztosítja hőtároló kiegészítésével, a hőleadás a földszinten padlón keresztül, a tetőtéri szinten radiátorokkal történik. 2020-2025 közötti felújítások: - teljes nyílászáró csere (háromrétegű üvegezéssel, elektromos redőnyökkel) - fújt padlás szigetelés - új utcafronti kerítés - 2 db új kovácsoltvas úszókapu távirányítós vezérléssel - felújított medenceburkolat és hőszivattyús fűtés - bővített áramhálózat (3×32A) és új világítótestek - megújult belső, új fürdőszobák - felújított, szigetelt teraszok - hőszigetelt garázskapu - új bádogozás - központi porszívó Alapterület: Földszint 94 m2 + 46 m2 külön bejáratú lakás Tetőtér: 74 m2 nettó, 115 m2 bruttó Garázs: 23 m2 Erkély: 3,5 m2 Bejárati terasz: 35 m2 Kert felőli terasz: 55 m2 Helyiségek: A földszinti lakótérbe lépve az előszobából nyílik a ház tágas és világos központi társalgó vagy étkező helyisége, kilátással a kertre, teraszra és medence térre. Bal oldalon található a hangulatos kandallóval rendelkező, 50 m2-es nappali és 7 m2-es konyha egy légtérben. Jobb oldali irányban találjuk az emeletre vezető lépcsőt, mosókonyhát, illetve egy ajtón keresztül átjuthatunk a külön bejárattal is rendelkező lakásba. Az előszobából nyílik egy vendég WC, a konyhához 2,4 m2-es kamra helyiség kapcsolódik. Az emeleti szinten a kör alakú galéria térből juthatunk egy 15 m2-es gardrób szobán keresztül 2 db hálószoba felé (ahol az egyik hálószobához erkély kapcsolat és zuhanyzós fürdőszoba tartozik), illetve a fő hálószoba és dolgozószoba irányába. A fő hálószobából tágas, walk-in zuhanyzóval, pezsgőfürdős káddal rendelkező fürdőszoba nyílik. A 46 m2-es külön bejáratú lakás amerikai konyhás nappali, hálószoba + zuhanyzós fürdőszoba, illetve tároló helyiségekből áll. Nagyszülő, felnőtt korú gyermek, vagy vállalkozás részére is ideális teret biztosít. Parkolás a fűtött 23 m2-es garázsban, a telken kialakított parkolóhelyen és a ház előtt is lehetséges. A gondosan megtervezett, ápolt kertet szép növényzet díszíti, a kerti szerszámok tárolására egy kis faház biztosít helyet.
https://ingatlanok.hu/elado/haz/torokbalint/420-millio-ft;261-negyzetmeter;7-szoba;cirko-futes/11573742