Az értékesítő:
Nagy Pál
+36 70 224 1279

Eladó családi ház Kakucs, 89 000 000 Ft, 102 négyzetméter

89 000 000 Ft
családi ház, 102 négyzetméter
Egész szobák:
4
Ingatlan állapota:
Kitűnő
Azonosító:
11573841
Értékesítés típusa:
eladó
Ingatlan típusa:
családi ház
Jelleg:
Családi ház
Település:
Kakucs
Alapterület:
102
Telekterület:
540
Ár:
89 000 000 Ft
Szintek száma:
1 szint
Terasz:
Van
Erkély:
Van
Melléképület:
Nincs
Pince:
Nincs
Parketta:
Nincs
Kábel TV:
Nincs
Telekterület típusa:
négyzetméter
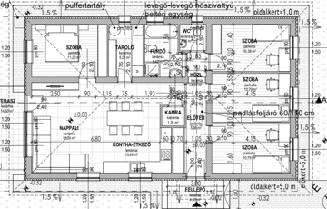
Kakucson nyugodt mellékutcájában kínáljuk ezt az alaprajzról előfoglalható, modern, 4 szobás családi házat, mely tágas telekre épül, és kiváló elrendezésével, energia hatékony megoldásaival ideális választás lesz családok számára. Tervezett műszaki tartalom és jellemzők: 4 hálószoba + amerikai konyhás nappali Padlófűtés hőszivattyús rendszerrel – energiatakarékos, korszerű fűtés Nagy, fedett terasz – tökéletes kültéri kikapcsolódásra Modern belső terek, praktikus alaprajz Helyiségek 102 m2-en: amerikai konyhás nappali étkezővel teraszkapcsolattal, kamra, 4 szoba, gépészeti helyiség tárolóval, közlekedő, fürdőszoba wc-vel , wc. Terasz fa pergolával, kertre néz, 15 m2. Magas minőségű anyaghasználat, igény szerint még módosítható burkolatokkal, színekkel Csendes mellékutca, barátságos környezet, minimális forgalom. Előnyös lokáció: Budapest kb. 30 perc alatt elérhető (M5 autópálya) A településen megtalálható: iskola, óvoda, orvosi rendelő, boltok, éttermek Kiváló infrastruktúra, dinamikusan fejlődő környezet, aktív helyi közösség A környéken rengeteg a lehetőség wellness és szabadidős tevékenységhez , kávézó fitnesz lehetőséggel, uszodával, kúriák, udvarházak, lovardák, autó-motor pálya rendezvényekkel ( Kakucs Ring). Budapestre jutás tömegközlekedéssel a félóránként induló, Népligetig közlekedő Volánbusz járattal lehetséges, továbbá a településen áthaladó vasúttal is megközelíthető. Legközelebbi város Dabas, Inárcstól 10 percre, ahol ügyintézéshez minden megtalálható, szolgáltatók (Bankok, Földhivatal, Kormányablak, NAV, Bíróság, Rendőrség, Gimnázium, Szakiskola) továbbá a bevásárlásokat is helyben lehet intézni ( Lidl,Tesco, Aldi, Spar, Pepco, rengeteg kis üzlet, havonta kirakodóvásár). Irodánk teljes körű INGYENES hitelügyintézést vállal az ország összes bankjával! Kulcsátadásig követjük az ügymenetet. Szerződéskötéshez, és bármilyen jogi kérdésben saját ügyvédeink állnak rendelkezésre ! Az építkezés még nem kezdődött el, így most van lehetőség alaprajzról foglalni, akár egyedi igények figyelembevételével is! Lépjen kapcsolatba velünk még ma – kérje el az alaprajzot és foglalja le álmai otthonát még az építkezés kezdete előtt! Keressen akár hétvégén is! Átadás: 2026 nyár Vége
https://ingatlanok.hu/elado/haz/kakucs/89-millio-ft;102-negyzetmeter;4-szoba;nincs-megadva-futes/11573841