Az értékesítő:
Tec 17 Ingatlan Kft.
+36 70 504 8744

Eladó családi ház Gödöllő, 152 900 000 Ft, 145 négyzetméter

152 900 000 Ft
családi ház, 145 négyzetméter
Egész szobák:
4
Ingatlan állapota:
Épülő
Azonosító:
11574029
Értékesítés típusa:
eladó
Ingatlan típusa:
családi ház
Jelleg:
Családi ház
Település:
Gödöllő
Alapterület:
145
Telekterület:
559
Ár:
152 900 000 Ft
Fűtés jellege:
Egyéb
Telekterület típusa:
négyzetméter
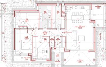
Új építésű kulcsrakész lakás Gödöllőn – magas műszaki tartalommal! Gödöllőn kínálunk eladásra egy új építésű 145 négyzetméteres, földszintes lakás, 559 négyzetméter telekkel, amely modern kialakításával, minőségi anyaghasználatával és energiatakarékos megoldásaival tökéletes választás. Főbb jellemzők: Falazat: 30 cm vastag csiszolt Porotherm tégla biztosítja a kiváló hő- és hangszigetelést. Külső nyílászárók: Öt légkamrás műanyag ablakok háromrétegű hőszigetelt üvegezéssel. Hőszigetelés és homlokzat: 12 cm vastag grafitos dryvit rendszer, nemesvakolattal ellátva. Külső teraszok Hideg burkolat 6500 Ft/nm. Belső falazat: 10 cm-es tégla válaszfalak Burkolatok: A belső burkolatok teljes mértékben a vevő választása szerint kerülnek kivitelezésre. Beltéri ajtók: 60.000 Ft//db értékű. Fürdőszobai felszereltség (terv szerint): Mosdó: 15.000 Ft/db Csaptelepek: 12.500 Ft/db Kád: 50.000 Ft lábbal WC: 16.500 Ft/db öblítő rendszerrel (ülőke nélkül) Kádtöltő, zuhanyfej, egyéb szerelvények az alapárban! Fűtés és melegvíz: Korszerű Atlantic Loria 8kW hőszivattyú, beépített melegvíz-tárolóval, valamint padlófűtés az egész lakásban. Riasztó és klímaberendezés elektromos előkészítése. Kialakítás: Amerikai konyhás nappali + étkező, 3 szoba, háztartási helyiség, fürdő+wc, előszoba, 2 db fedett terasz, nyárikonyha. Környék: Gödöllő csendes mellékutcájában található. Közelben számos bevásárlási lehetőség, gyógyszertár, játszótér, edzőterem. Az M3-as autópálya pár perc alatt közelíthető meg. Közelben 14, 24, 45, 4, 4A, 2, 2A, 402 buszjáratok érhetők el. FINANSZÍROZÁS: Az ingatlan banki finanszírozással is megvásárolható, melyben irodánk ingyenes tanácsadással áll rendelkezésükre! IRÁNYÁR: 152,9 M Ft. VEVŐINK RÉSZÉRE A KÖZVETÍTÉS DÍJTALAN A hirdetésben szereplő adatok tájékoztató jellegűek.
https://ingatlanok.hu/elado/haz/godollo/153-millio-ft;145-negyzetmeter;4-szoba;egyeb-futes/11574029