Az értékesítő:
Somogyi Nikoletta
+36 70 605 0504

Eladó lakás Budapest IV. ker, 70 500 000 Ft, 71 négyzetméter

70 500 000 Ft
lakás, 71 négyzetméter
Építőanyag:
Panel
Egész szobák:
3
Komfort fokozat:
Összkomfort
Ingatlan állapota:
Azonosító:
11574098
Értékesítés típusa:
eladó
Ingatlan típusa:
lakás
Település:
Budapest IV. ker
Alapterület:
71
Ár:
70 500 000 Ft
Tulajdonviszony:
Saját
Emelet:
4. emelet
Fűtés jellege:
Távfűtés
Kilátás:
panorámás
Építési év:
21-50 éves
Erkély:
Van
Pince:
Nincs
Tároló:
Nincs
Lift:
Van
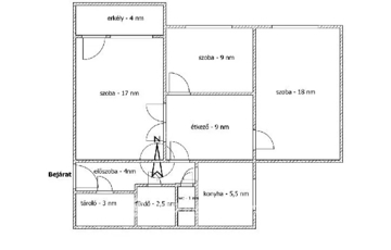
ÚJPESTEN, az Árpád Üzletház közelében eladó egy 71 nm-es, 3 szobás + étkezős, ERKÉLYES, azonnal költözhető panel lakás! ✨ Világos, délnyugati tájolású otthon, kiváló elosztással, a 4. emeleten. Alacsony rezsi, távfűtés (átalány: kb. 15.000 Ft), közös költség 24.000 Ft/hó (megtakarítással). Egyedi mérésű víz és villany, tehermentes, 1/1 tulajdon. Rendezett társasház: Felújított lift , tiszta lépcsőház, pozitív megtakarítási alap, kulturált lakóközösség, ingyenes parkolás az utcán . Közlekedés: 20E, 25, 120, 121-es buszok a közelben. Pár perc sétára boltok, pékség, SPAR, Penny, gyógyszertár, cukrászda , parkok , Árpád Üzletház. Családoknak és befektetőknek is remek választás! Ha szeretné megtekinteni, hívjon bizalommal!
https://ingatlanok.hu/elado/lakas/budapest-iv-ker/71-millio-ft;71-negyzetmeter;3-szoba;panel-epitesu/11574098