Az értékesítő:
Martonfi Xénia
+36 70 418 3630

Eladó családi ház Szászberek, 88 000 000 Ft, 150 négyzetméter

88 000 000 Ft
családi ház, 150 négyzetméter
Építőanyag:
Tégla
Egész szobák:
5
Ingatlan állapota:
Azonosító:
11574446
Értékesítés típusa:
eladó
Ingatlan típusa:
családi ház
Jelleg:
Családi ház
Település:
Szászberek
Alapterület:
150
Telekterület:
627
Ár:
88 000 000 Ft
Fűtés jellege:
Cirkó
Erkély:
Van
Telekterület típusa:
négyzetméter
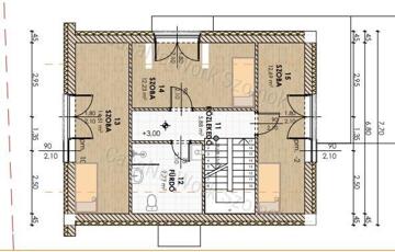
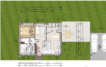
<p><strong>A Szolnoki CasaNetWork Ingatlaniroda megvételre kínál Szászbereken tégla építésű családi házat! Falusi CSOK igénybevehető!</strong></p><p>Szászberek dinamikusan fejlődő település, Szolnoktól 20 km-re fekszik, az M4-s autóút néhány perc menetidővel elérhető.<br />A közbiztonság kiemelkedően jó, a településen magas színvonalú általános iskola működik, óvoda, bölcsőde szintén van a településen.<br />Mind a műszaki, technológiai megvalósítás, mind a belső terek kialakítása a mai kor igényeinek, elvárásainak megfelelő.</p><p><strong>A hirdetési ár 50 % befizetése szerződéskötéskor.<br /></strong></p><p><strong>A lakások átadási határideje: szerződéskötést követően 1 év.</strong></p><p>Néhány jellemző az ingatlanról<br />- kétszintes, tégla építésű családi ház 130 m2 alapterülettel, 20 m2 terasszal és 36 m2 garázzsal<br />- amerikai konyhás nappali, 4 szoba, dupla komfort<br />- hőszigetelt műanyag nyílászárók<br />- padlófűtés kondenzációs kazánnal<br />- belső burkolatok a tulajdonos által katalógusból választva</p><p>Részletes műszaki leírás irodánkban elérhető!</p><p>Amennyiben a hirdetésben szereplő új építésű társasházi lakás, vagy bármely, a kínálatunkban található ingatlan felkeltette érdeklődését, hívjon bizalommal!</p><p>|A hirdetésben szereplő információk a megbízótól kapott adatok alapján készültek.|</p><p>Irodánk teljes körű szolgáltatással áll ügyfelei rendelkezésére: hitelügyintézés, ügyvédi szolgáltatás, ingatlan értékbecslés, energetikai tanúsítvány készítése.</p><p><strong>CasaNetWork - Ingatlanban otthon vagyunk!</strong></p>
https://ingatlanok.hu/elado/haz/szaszberek/88-millio-ft;150-negyzetmeter;5-szoba;cirko-futes/11574446