Az értékesítő:
Domián Róbert
+36 70 657 3654

Eladó családi ház Érd, 70 000 000 Ft, 171 négyzetméter

70 000 000 Ft
családi ház, 171 négyzetméter
Építőanyag:
Tégla
Egész szobák:
4
Komfort fokozat:
Összkomfort
Ingatlan állapota:
Épülő
Azonosító:
11574450
Értékesítés típusa:
eladó
Ingatlan típusa:
családi ház
Jelleg:
Családi ház
Település:
Érd
Alapterület:
171
Telekterület:
816
Ár:
70 000 000 Ft
Terasz:
Van
Erkély:
Van
Telekterület típusa:
négyzetméter
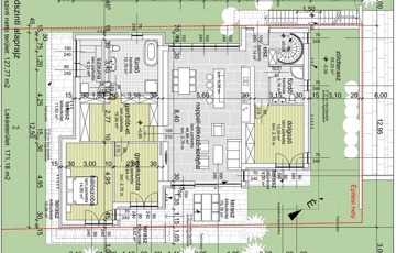
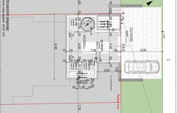
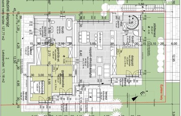
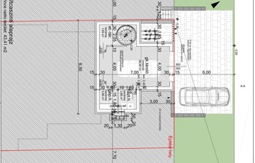
Eladásra kínálok Érden, Érdparkvárosban, az M7-es és M0-ás útvonalak által körülhatárolt területrészén, a településnek egy természetközeli, nagyon csendes részén, 816 nm alapterületű, téglalap alakú, kb. 25-26 méter széles, összközműves telken álló, 128 nm alapterületű lakásterülettel, 2 szintes, szinteltolásos, 4 szobás, 3 teraszos, 2 fürdőszobás, gardróbos, szerkezetkész állapotú családi házat, pinceszinten 43 nm-es garázzsal, nagy hátsó kerttel, a hátsó kertben bontandó kis házzal. A ház építése 2020-ban kezdődött, a terep- és domborzati viszonyoknak megfelelően kialakított, pincézett, beton alapzattal és beton födémszerkezettel, B30-as tégla falazat alkalmazásával szerkezetkész állapotig jutott el és családi okok miatt nem készült el. Az épületet a tulajdonos saját magának építette a kornak megfelelő korszerű és használt technológiáinak felhasználásával. Az ingatlanról a tervrajzok egy részét és néhány friss belső és külső fotót tettem közzé. Tulajdonságok: Építési övezet: Lke-1(h) Beépítési mód: SZ (szabadonálló) Telek terület: 816 m2 Földszinti bruttó beépítés: 163 m2 Beépítettség: 163/816=19,9%, 25% (megengedett) Terepszint alatti beépítés: 59 m2 Szintterület mutató: (59+163)/816=0,27, 0,38 (megengedett) Zöldterület: 573 m2/816 m2=70,2% 50% (előírt) Épületmagasság: 3,87 m 6,00 m (megengedett) Gk.tárolás: 1 db gk.tároló épületen belül Kerékpár tárolás: 1 db elhelyezhető a telken Előkert: 6,00 m (HÉSZ szerint) Oldalkert(legkisebb) 3,00 m 3,00 m (előírt) Hátsókert(legkisebb): 18,60 m 6,00 m (megengedett) Lakásterület: 171,18 m2 204 m2 (megengedett) Műszaki állapot: a házat alapos tervezés, és eddigi állapotának megfelelő kivitelezés jellemzi, mely a tulajdonos törekvése volt. A lapostető kavicsolt bitumenlemezfedés. Környék: Érd fiatal családi házas övezetében Érdparkvárosban helyezkedik el. Iskola, óvoda, bevásárlási lehetőségek, orvos, patika, játszótér néhány perc alatt elérhető, mind a közelben megtalálható. Ajánlom azoknak, akik a térségben, Érden vagy környékén modern, lapostetős, tágas és világos kertes házra vágynak nagy nyílászárókkal, tolóajtókkal, melyet saját ízlésük szerint tudnak kialakítani és lakható állapotúra befejezni. Az építési engedélyek a használatba vételi engedélyezés megvalósításához és az építkezés befejezéséhez a következő 3 évben még adottak. Adatkezelés Ezúton tájékoztatjuk, hogy Ön mint érdeklődő, a hirdetésben megjelölt telefonszám felhívásával hozzájárul személyes adatai – így különösen neve és telefonszáma -, a hirdetést feladó FORTISElit Ingatlan Kft. általi - biztonságos és körültekintő - kezeléséhez, nyilvántartásához. E körben, keresse a FORTISELIT ingatlaniroda weboldalát adatkezelési tájékoztatót. We hereby inform you that You as an interested party, by calling the phone number mentioned in the advertisement, contribute to be your personal data – especially your name and phone number – handled and recorded safe and circumspectively by FORTISElit Ingatlan Kft as advertiser. Hereby, you can learn our Privacy Policy. Finanszírozás: Adatbázisunkban további több ezer ingatlanból választhat, hívjon bizalommal, hogy megtaláljuk a legmegfelelőbbet! Hitelre van szüksége? Teljes körű és díjmentes hitel-ügyintézéssel, biztosításkötéssel áll rendelkezésére szakértő kollégánk. Kérje személyre szabott ajánlatunkat!
https://ingatlanok.hu/elado/haz/erd/70-millio-ft;171-negyzetmeter;4-szoba;nincs-megadva-futes/11574450