Az értékesítő:
Banó Kocsis Zsuzsanna
+36 30 341 6895

Eladó családi ház Helvécia, 57 900 000 Ft, 60 négyzetméter

57 900 000 Ft
családi ház, 60 négyzetméter
Építőanyag:
Könnyűszerkezetes
Egész szobák:
3
Komfort fokozat:
Összkomfort
Fűtés módja:
Hőszivattyú
Ingatlan állapota:
Épülő
Azonosító:
11574528
Értékesítés típusa:
eladó
Ingatlan típusa:
családi ház
Jelleg:
Ikerház
Település:
Helvécia
Alapterület:
60
Telekterület:
350
Ár:
57 900 000 Ft
Szintek száma:
Földszintes
Fűtés jellege:
Villany
Kor:
Új építésű
Telekterület típusa:
négyzetméter
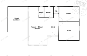
Új építésű nappali + 2 szobás, 60 m²-es ikerház eladó Kecskeméten! Kecskemét központjától mindössze 10 percre kínálunk eladásra egy vadonatúj, modern technológiákkal épülő ikerházat, amely tökéletes választás mind családok, mind befektetők számára. Az ingatlan jellemzői: Új építésű, prémium minőségű anyagokkal és korszerű műszaki megoldásokkal 60 m² lakóterület: tágas nappali + 2 kényelmes szoba 350 m²-es telek – ideális kert, pihenő vagy játszótér kialakítására 10 cm hőszigetelés és hőszivattyús padlófűtés – energiatakarékos, alacsony rezsijű otthon Prémium műanyag nyílászárók és választható hideg- és melegburkolatok (6000 Ft/m²-ig) Fedett gépkocsibeálló, idő- és árgaranciával Alkalmas 3%-os Otthon Start Hitelre Beköltözés 10–12 hónapon belül az adásvételtől számítva Miért éri meg új építésű ingatlanba fektetni? Egy új építésű ház nemcsak korszerű és energiatakarékos, de évekig mentes a felújítási költségektől is. A modern technológiáknak köszönhetően alacsonyabbak a rezsiköltségek, az ingatlan értéke pedig stabilan növekszik – így ideális választás biztonságos befektetésnek is. 57900000 Ft Az iroda legfrissebb, aktuális kínálatát a HOUSE36 saját weboldalán találja!
https://ingatlanok.hu/elado/haz/helvecia/58-millio-ft;60-negyzetmeter;3-szoba;villany-futes/11574528