Az értékesítő:
Mohácsi Mária
+36 70 660 1636

Eladó családi ház Kecskemét, 79 000 000 Ft, 94 négyzetméter

79 000 000 Ft
családi ház, 94 négyzetméter
Építőanyag:
Könnyűszerkezetes
Egész szobák:
4
Ingatlan állapota:
Épülő
Azonosító:
11574577
Értékesítés típusa:
eladó
Ingatlan típusa:
családi ház
Jelleg:
Családi ház
Település:
Kecskemét
Alapterület:
94
Telekterület:
477
Ár:
79 000 000 Ft
Szintek száma:
Földszintes
Fűtés jellege:
Egyéb
Kor:
Új építésű
Telekterület típusa:
négyzetméter
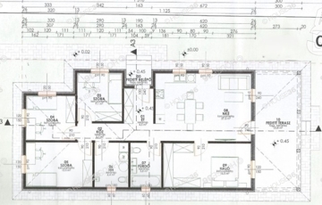
Kecskemét gyönyörű új lakóparkjában, legyen ön az első lakó, egy minden igényt kielégítő családi házban. Csok plusz-ra, 3% hitelre is alkalmas. - 4 szoba - nagy nappali étkezővel - hőszivattyú - padlófűtés - 113,31 bruttó m2 ház - nettó 94,6 - 477 m2 telek - 24 m2 fedett terasz - 2026 januári átadással - választható szaniterek, nyílászárók, színek, burkolatok. ​Keresse értékesítőinket. Nézzük meg. Igazán csak úgy lehet beleszeretni. Akár hétvégén is megmutatom. Figyelem az adatlap megbízónktól kapott adatok alapján készült, pontosságáért felelősséget vállalni nem tudunk. Az iroda legfrissebb, aktuális kínálatát a HOUSE36 saját weboldalán találja!
https://ingatlanok.hu/elado/haz/kecskemet/79-millio-ft;94-negyzetmeter;4-szoba;egyeb-futes/11574577