Az értékesítő:
Nemes Edit
+36 70 716 9906

Eladó családi ház Debrecen, 188 520 000 Ft, 157 négyzetméter

188 520 000 Ft
családi ház, 157 négyzetméter
Egész szobák:
5
Ingatlan állapota:
Kitűnő
Azonosító:
11574584
Értékesítés típusa:
eladó
Ingatlan típusa:
családi ház
Jelleg:
Ikerház
Település:
Debrecen
Alapterület:
157
Telekterület:
660
Ár:
188 520 000 Ft
Terasz:
Nincs
Erkély:
Van
Melléképület:
Nincs
Pince:
Nincs
Parketta:
Nincs
Kábel TV:
Nincs
Telekterület típusa:
négyzetméter
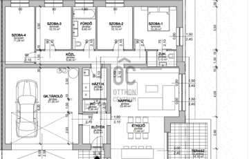
Eladásra kínálunk egy kivételes minőségben megtervezett, letisztult, modern stílusú ikerházat Debrecen Nagymacs részén, amely minden szempontból a jövő otthona. Az ingatlan magas szintű energiahatékonysággal, kimagasló komforttal és exkluzív esztétikával várja új tulajdonosát. Az otthon négy különálló, tágas hálószobával lett kialakítva, így ideális nagyobb családok számára is. A lakáshoz tartozó garázs mérete több mint 37 m², így két gépjármű komfortos tárolására is alkalmas, plusz extra tárolóhelyet biztosít! Főbb extrák és előnyök: - Letisztult, időtálló homlokzat, prémium szilikonos nemesvakolattal és elegáns homlokzatburkolatokkal, nagy üvegfelületekkel - Hatalmas, napfényes terek, modern belsőépítészeti kialakítással - Saját, kétállásos garázs, parkolási lehetőséggel több autó részére - Magas szintű hő- és hangszigetelés: háromrétegű műanyag ablakok (Ug=0,7 W/m2K), 35 cm vastag kőzetgyapot tetőszigetelés, dupla rétegű padlóhőszigetelés - Padlófűtés minden helyiségben - Levegő-víz hőszivattyús hűtés és fűtés, H-tarifás mérővel (2 db fan-coil hűtőberendezés/lakás) - Saját, 5 kW-os napelemes rendszer lakásonként - Prémium minőségű burkolatok választható színekben (br. 10.000-15.000 Ft/m²-ig), igényesen kialakított vizes helyiségek - Modern, exkluzív szaniterek (fürdőkád, zuhany, mosdók, WC prémium árkategóriában) - Tágas, világos nappali-étkező-konyha egyben, közvetlen teraszkapcsolattal - Hideg- és melegburkolatok, minőségi laminált parketta (7-8 mm) A lakóház minden elemében a korszerű, energiatudatos építészet értékeit képviseli. Kifinomult, időtálló megjelenést kapott prémium szilikonos nemesvakolattal, letisztult homlokzatburkolatokkal és nagyvonalú üvegfelületekkel. A világos, napfényes nappali, étkező és konyha egységből közvetlen kapcsolat nyílik a teraszra és a parkosított, térköves udvarra, ahol az automata öntözőrendszer előkészítés is megtalálható. Esztétikus, világos térkő burkolat az udvaron, parkosított zöldterület, automata öntözőrendszer előkészítés, dísznövények, elkerített telek elektromos kapuval. Szerkezeti megoldások: - VIABLOKK falszerkezet – kiemelkedő teherbírás és hőszigetelés - Szeglemezes rácsos tetőszerkezet, előszigetelt tetőpanel (antracitszürke RAL 7016) - Vasbeton koszorúk, hanggátló falak a legjobb privátszféra érdekében - Tartós, csúszásmentes burkolatok lépcsőkön, közlekedőkön - Minden hatályos szabványnak megfelelő csapadékvíz és hulladék elhelyezés – süllyesztett kukatárolóval, csapadékvíz-elvezető rendszerrel. Kiváló lokáció, jövő biztos technológia, kompromisszum-mentes minőség Ez az ingatlan a maximális lakókomfort és a fenntartható, energiatudatos kialakítás tökéletes kombinációja. Ha Ön valóban időtálló, multifunkcionális, exkluzív otthont keres családjának Debrecenben, ne habozzon érdeklődni – személyes bemutatást, részletes műszaki konzultációt, és látványterveket is biztosítunk! #debrecen #nagymacs #újépítés #2026 #hőszivattyú #ikerház #viablokk #4háló #napelem #duplagarázs
https://ingatlanok.hu/elado/haz/debrecen/189-millio-ft;157-negyzetmeter;5-szoba;nincs-megadva-futes/11574584