Az értékesítő:
Ignát Arnold
+36 20 290 0676

Eladó családi ház Vecsés, 140 000 000 Ft, 149 négyzetméter

140 000 000 Ft
családi ház, 149 négyzetméter
Építőanyag:
Tégla
Egész szobák:
5
Fűtés módja:
Hőszivattyú
Ingatlan állapota:
Épülő
Azonosító:
11574646
Értékesítés típusa:
eladó
Ingatlan típusa:
családi ház
Jelleg:
Ikerház
Település:
Vecsés
Alapterület:
149
Telekterület:
505
Ár:
140 000 000 Ft
Szintek száma:
Földszintes
Fűtés jellege:
Villany
Kor:
Új építésű
Erkély:
Van
Telekterület típusa:
négyzetméter
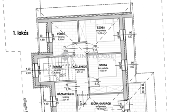
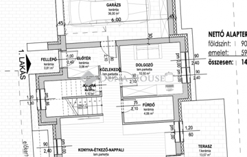
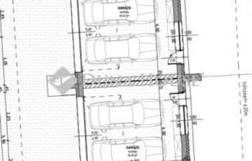
ELADÓ ÚJ ÉPÍTÉSŰ IKERHÁZ VECSÉS LEGKEDVELTEBB, FIATALOS RÉSZÉN MODERN KÖRNYEZET, CSALÁDIAS HANGULAT, KIVÁLÓ MINŐSÉG! Vecsés egyik legdinamikusabban fejlődő, modern lakóparkjában kínálunk eladásra új építésű, prémium minőségű családi házakat. A beruházó több éves tapasztalattal és számos elégedett ügyféllel rendelkezik – referenciái akár a közelben is megtekinthetők. Az ikerház mindkét fele önálló, privát kerttel rendelkezik, kizárólag a 36 m²-es, kétállásos garázsnál érintkeznek egymással. A 149,58 m²-es otthonok tökéletes elrendezésűek: tágas nappali, 4 hálószoba, gardrób, két fürdőszoba és külön mosókonyha biztosítja a kényelmet. A szülői hálószoba külön erkéllyel (6,12 m²) és privát funkciókkal rendelkezik. A földszinten részben fedett, 13,57 m²-es terasz nyújt tökéletes helyet a családi pihenéshez. Minden otthonhoz 505 m²-es saját kertrész tartozik, így a nyugalom és privát tér garantált. MŰSZAKI JELLEMZŐK: 30-as Porotherm tégla falazat 15 cm homlokzati hőszigetelés 18 cm aljzatszigetelés 8 cm födémszigetelés 3 rétegű, kívül antracit – belül fehér műanyag nyílászárók Elektromos, antracit színű garázskapu Hőszivattyús fűtés-hűtés rendszer (fan coil) Elektromos redőnyök Riasztó és kaputelefon kiállás Térkövezett autóbeálló A burkolatok, beltéri ajtók és szaniterek még választhatók, így az új tulajdonos teljes mértékben a saját ízlésére formálhatja leendő otthonát. KÖRNYEZET ÉS ELHELYEZKEDÉS: A lakópark új, rendezett, zöld környezetben helyezkedik el, fákkal, játszótérrel és családias hangulattal. Közlekedése kiváló: autóval a Gyorsforgalmi út, az Üllői út, a Gyömrői út, az M0-ás és a 4-es főút mindössze 3 perc alatt elérhető. Tömegközlekedéssel is könnyen megközelíthető: 3 perc sétára Volánbusz-megálló (Kőbánya-Kispest irányába), 10 perc sétára a Vecsési vasútállomás, ahonnan közvetlen vonatjárat indul a Nyugati pályaudvarra. ÁTADÁS: 2026. IV. negyedév Ez az otthon a modern technológia és a családbarát kialakítás tökéletes egyensúlya — ahol a minőség, a kényelem és a nyugalom találkozik. Ha felkeltette érdeklődését, keressen bizalommal a hét bármely napján!
https://ingatlanok.hu/elado/haz/vecses/140-millio-ft;149-negyzetmeter;5-szoba;villany-futes/11574646