Az értékesítő:
Balogh Attila
+36 30 953 6051

Eladó lakás Hajdúböszörmény, 65 200 000 Ft, 52 négyzetméter

65 200 000 Ft
lakás, 52 négyzetméter
Építőanyag:
Tégla
Egész szobák:
2
Komfort fokozat:
Összkomfort
Ingatlan állapota:
Épülő
Azonosító:
11575140
Értékesítés típusa:
eladó
Ingatlan típusa:
lakás
Település:
Hajdúböszörmény
Alapterület:
52
Ár:
65 200 000 Ft
Emelet:
Földszint
Fűtés jellege:
Házközponti (egyedi mérővel)
Kilátás:
panorámás
Építési év:
Új építésű
Erkély:
Van
Tároló:
Van
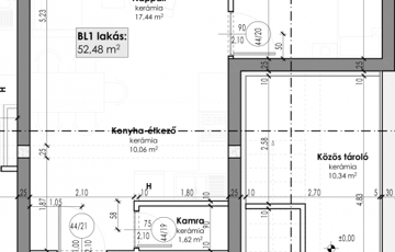
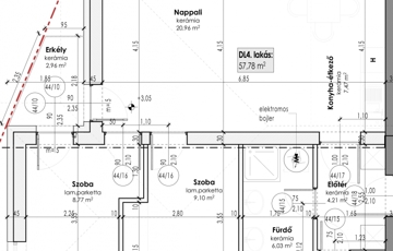
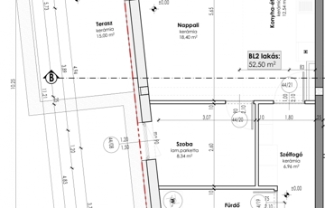
Megvásárlásra kinálunk Önnek Hajdúböszörmény abszolút belvárosában új épitésű, azonnali átadással korszerű, 52nm - 58nm alapterületű 3db földszinti és 1db emeleti lakásokat! Az ingatlanok irányárral eladóak, melyben a magas műszaki tartalom és a kifinomult energiatakarékos megoldások garantálják a rendkívül alacsony fenntartási költségeket. A lakás prémium 3 rétegű, 6 légkamrás műanyag nyílászárókkal, valamint egy modern hőszivattyús rendszerrel vannak felszerelve, amely egyszerre biztosítja a fűtést, a hűtést, a mennyezeti hűtést és a kellemes padlófűtést. A földszinti lakásokhoz terasz, az emeleti lakáshoz egy 3 négyzetméteres erkély tartozik. A lakópark családbarát környezetet biztosit, füvesített, parkosított zöldterületekkel, valamint egy saját játszótér várja a lakókat. További lehetőségként vásárolható a lakáshoz felszíni beálló vagy garázs. Ár: Irányár (Az ingatlan pontos áráért kérjen ajánlatot!) Alapadatok: Helyszín: Hajdúböszörmény, Belváros Alapterület: 52m² - 58 m² Állapot: korszerű, magas műszaki tartalmú, családbarát Ingatlan típusa: társasházi lakás Energiatakarékosság: magas szintű, korszerű megoldások – alacsony fenntartási költségek Nyílászárók: 3 rétegű, 6 légkamrás, prémium minőségű műanyag ablakok Fűtés és hűtés: hőszivattyús rendszer – fűtés, hűtés, mennyezeti hűtés és padlófűtés együtt Burkolatok és szaniterek: prémium minőségű, választható kivitelezéssel Biztonsági rendszer: riasztórendszerrel és bejárati kamerával felszerelt Terasz, Erkély: 3 m²-es, az emeleti lakáshoz tartozó, terasz a földszinti lakásokhoz. Környezet: füvesített, parkosított zöldterület, családbarát lakópark Játszótér: a kisgyermekes családok számára kialakított saját játszótér Egyéb lehetőségek: Tároló: 4,03 m²-es tároló vásárolható – ára: 2.100.000 Ft Parkolás: felszíni beálló vagy garázs vásárlására is van lehetőség Személyes megtekintéssel meggyőződhet arról, hogy ez a lakás valóban egyedülálló lehetőség – keressen bizalommal részletekért! További információért hívjon bizalommal, akár hétvégén is. Megtekintésre telefonos egyeztetés alapján van lehetőség. (06 30 9536 051) További ingatlankinálatunkat megtekintheti a WWW.TELEINGATLAN.HU weboldalunkon. Referencia szám: A081
https://ingatlanok.hu/elado/lakas/hajduboszormeny/65-millio-ft;52-negyzetmeter;2-szoba;tegla-epitesu/11575140