Az értékesítő:
Bellovics Tamás
+36 20 611 3405

Eladó családi ház Veszprém, 149 000 000 Ft, 240 négyzetméter

149 000 000 Ft
családi ház, 240 négyzetméter
Építőanyag:
Tégla
Egész szobák:
7
Komfort fokozat:
Összkomfort
Fűtés módja:
Gáz
Ingatlan állapota:
Azonosító:
11575234
Értékesítés típusa:
eladó
Ingatlan típusa:
családi ház
Jelleg:
Sorház
Település:
Veszprém
Alapterület:
240
Telekterület:
450
Ár:
149 000 000 Ft
Szintek száma:
2 szint
Fűtés jellege:
Cirkó
Kor:
21-50 éves
Terasz:
Van
Pince:
Van
Telekterület típusa:
négyzetméter
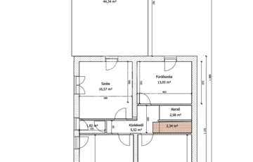
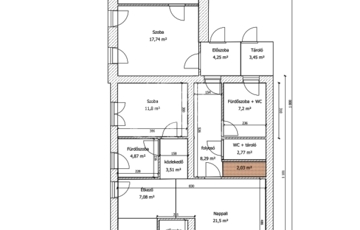
Tágas, igényes szélső sorház zöldövezetben – akár több generációnak is! - Ha egy minőségi kialakítású, tágas és sokoldalú otthont keresel, ahol a kényelem, a nyugalom és a természet közelsége idilli harmóniában áll, akkor ez az ingatlan tökéletes választás! - A 450 m²-es telken elhelyezkedő, 240 m²-es, kétszintes ház igényes kialakításának köszönhetően kifogástalan állapotban várja új lakóit. - A fűtésrendszer sokoldalúságot kínál: padlófűtés, radiátorok és egy hangulatos kandalló gondoskodnak a kellemes hőmérsékletről és a meghitt hangulatról. - A fa és műanyag nyílászárók, valamint a hatékony szigetelés energiatakarékos működést biztosítanak, a cseréptető pedig elegáns és időtálló megjelenést ad az épületnek. - A földszint akadálymentesített, így kerekesszékkel is kényelmesen használható. - A tágas amerikai konyhás nappali étkezővel, 3 nagyobb szoba, 2 fürdőszoba + külön WC, valamint tárolók és egy praktikus, beépített könyvespolcos folyosó teszik otthonossá a teret. - Az udvarban három tároló található, igény szerint elbonthatók. - Parkolás az udvarban és a ház előtt is biztosított. - Az emeletet tömör falépcső köti össze a földszinttel. - Itt két tágas szoba kapott helyet, az egyikhez 9 m²-es, a másikhoz pedig egy impozáns, 44 m²-es panorámás terasz tartozik. - Ezen a szinten található még egy tágas fürdőszoba, külön mosdó és közlekedő, ahonnan lépcső vezet a tetőtérbe. - A tetőtér jelenleg konditeremként funkcionál, kétoldalt további tárolóhelyiségekkel. - Ez a ház valódi élettér, amely akár több generáció számára is kényelmesen használható. - A különválasztható szintek, a tágas belső terek és a hatalmas teraszok biztosítják a kényelmet és a privát szférát mindenkinek. Amennyiben a veszprémi GDN Ingatlaniroda által kínált gyönyörű környezetben elhelyezkedő sorház vagy bármely, a kínálatunkban található ingatlan felkeltette érdeklődését, forduljon hozzám bizalommal! Ingatlanirodánk díjmentes, banksemleges hitelügyintézéssel, illetve ügyvédi tanácsadással is áll Ügyfeleink rendelkezésére!
https://ingatlanok.hu/elado/haz/veszprem/149-millio-ft;240-negyzetmeter;7-szoba;cirko-futes/11575234