Az értékesítő:
Rákosné Tímea
+36 70 412 5026

Eladó családi ház Hajdúsámson, 55 900 000 Ft, 72 négyzetméter

55 900 000 Ft
családi ház, 72 négyzetméter
Egész szobák:
3
Ingatlan állapota:
Kitűnő
Azonosító:
11575854
Értékesítés típusa:
eladó
Ingatlan típusa:
családi ház
Jelleg:
Ikerház
Település:
Hajdúsámson
Alapterület:
72
Telekterület:
240
Ár:
55 900 000 Ft
Fűtés jellege:
Cirkó
Terasz:
Nincs
Erkély:
Van
Melléképület:
Nincs
Pince:
Nincs
Parketta:
Nincs
Kábel TV:
Nincs
Telekterület típusa:
négyzetméter
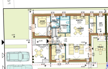
A 72 négyzetméteres alapterülettel rendelkező, új építésű házban tágas nappali + 2 szoba és két fürdőszoba vár rád. Az amerikai konyhás nappali a középpontja a lakásnak, ahol barátaiddal és családoddal együtt élvezheted a közös pillanatokat. A 13 és 18,5 négyzetméteres terasz ideális helyszín a reggeli kávézáshoz vagy a nyári grillpartikhoz, miközben a panorámát csodálhatod. A ház fűtése gáz cirkó rendszerrel működik, ami gazdaságos és kényelmes megoldást kínál a hideg téli hónapokban, míg a klíma a nyári melegben biztosítja a kellemes hőmérsékletet. A közel 240 m2 telek tökéletesen alkalmas kertkapcsolatos lakás kialakítására, így a szabadban eltöltött idő mindenki számára élvezetes lehet. Az ingatlan modern dizájnja és praktikus elrendezése lehetővé teszi, hogy a hétköznapokban is maximálisan kihasználhasd a teret. A környék csendes és biztonságos, ideális helyszín a fiatal felnőttek számára, akik értékelik a nyugodt, de mégis élénk városi életet. A közlekedési lehetőségek kiemelkedőek: a városközpont mindössze néhány percre található, így a mindennapi teendőid könnyedén megoldhatóak. A ház jellemzői: - 30-as téglafalazat 15 cm hőszigeteléssel - 3 rétegű műanyag nyílászárók - gáz cirkó padlófűtéssel a szobákban radiátoros hőleadókkal - az ingatlan fúrt kúttal nyert vízzel ellátott, és ingatlanonként külön zárt szennyvíztároló építve - a nappaliban 1 db inverteres klíma kerül - autó beállási lehetőség az udvaron -osztatlan közös terület, ügyvédileg szabályozott használati szerződéssel - az ikerházak egymás mögé épülnek, kazánházzal, gépészeti helyiséggel elválasztva a 2 épületet Az ingatlanra CSOK+, babaváró és piaci hitel igénybevehető! Az Otthon Start hitelnek a település 2026 januártól felel meg. Átadás: 2027. március A tömegközlekedés is jól kiépített, így bármikor gyorsan elérheted Debrecent a 4405-ös busszal. A közeli boltok, az újonnan nyíló SBOX bevásárló központban szinte minden elérhető. Ez az ingatlan nemcsak egy otthon, hanem egy lehetőség is a jövőd építésére. Ha befektetési céllal keresel ingatlant, ez a modern ház tökéletes választás lehet, hiszen a környék folyamatosan fejlődik, és a kereslet egyre nő. Ne habozz, hiszen az ilyen lehetőségek gyorsan elkelnek! Kérlek, bátran keresd fel kérdéseiddel, hiszen itt vagyok, hogy segítsek neked a legjobb döntés meghozatalában!
https://ingatlanok.hu/elado/haz/hajdusamson/56-millio-ft;72-negyzetmeter;3-szoba;cirko-futes/11575854