Eladó családi ház Nemesvámos, 170 000 000 Ft, 151 négyzetméter
        
            
                
                    
                        170 000 000 Ft
                        
                            családi ház, 151 négyzetméter                        
                                                    
                                                    
                                                    
                                Komfort fokozat: 
                                Összkomfort
                             
                                                    
                                Ingatlan állapota: 
                                Kitűnő
                             
                                                    
                                                    
                                Értékesítés típusa: 
                                eladó
                             
                                                    
                                Ingatlan típusa: 
                                családi ház
                             
                                                    
                                                    
                                                    
                                                    
                                                    
                                                    
                                                    
                                                    
                                Telekterület típusa: 
                                négyzetméter
                             
                        
                     
                 
                
             
         
        
                            Prémium minőségű, ÚJSZERŰ bővíthető családi otthon eladó!
FIGYELEM!
- Igényesen kivitelezett otthon
- Az ingatlanban PRÉMIUM minőségű szaniterek, minőségi burkolatok
- Elektromosan vezérelhető (telefonról is) alumínium redőnyök (egyedi színű redőny)
- Térfigyelő kamerarendszer
- - Fedett (elektromos, szigetelt aluminium redőnnyel teljesen lezárható, redőnyönként működtethető) teraszon AJÁNDÉK 4 személyes JAKUZZIVAL, 2 személyes INFRASZAUNÁVAL
- Ingatlanban VÍZLÁGYÍTÓ berendezés
- Nappaliban TÉRELVÁLASZTÓ ÜVEGFAL 
- Amerikai konyhás nappali
- SZIGETELÉS: 15 cm
- Tájolása NYUGATI, ezért a nappaliból ÖRÖK NAPLEMENTE-, udvarból pedig BAKONY panoráma tárul elénk
- Az elírások és változtatások jogát fenntartjuk!
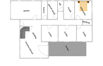
Főbb jellemzők:
Ingatlan: 151 m2
Terasz: 18,16 m² (elektromosan zárható, szigetelt alumínium redőnyökkel)
Telek területe: 600 m²
Építés éve: 2020–2021
Szobaszám: 2+ 3 félszoba + 2 félszoba (tetőtér)
Fűtés-hűtés: hőszivattyús padlófűtés + nappaliban hűtő-fűtő klíma
Melegvíz: hőszivattyú biztosítja
Nyílászárók: új, műanyag, 3 rétegű üvegezéssel, elektromos redőnyökkel és szúnyoghálóval
Vízhálózat: beépített vízlágyító berendezéssel
Belső elrendezés és felszereltség:
-	Prémium minőségű szaniterek, burkolatok és beépített bútorok
-	Amerikai konyhás nappali egyedi kialakítású, bővíthető konyhaszigettel
-	Prémium Bosch, Electrolux beépített konyhagépek, beépített kávéfőzővel (Bosch) és fiókba épített szeletelőgéppel
-	Magas minőségű beépített szekrények több helyiségben
-	 Két fürdőszoba (egyik zuhanyzós, másik fürdőkádas)
A szülői lakosztályból nyílik egy privát fürdőszoba (zuhanyzós) és egy gardróbhelyiség.
Tetőtér előkészítve!
A tetőtér beépítése megkezdődött, a tető megemelése nélkül.
2 szoba, 1 fürdőszoba és egy WC került kialakításra.
A víz és villany kiépítve, gipszkartonozás és burkolás előtti állapotban.
Tetőablakok beépítve, lépcső kialakítása hátra van – a befejezés az új tulajdonos ízlésére bízható.
Külső jellemzők és biztonság:
-	Térkövezés (egyedi térkő) elkészült, kert füvesítése folyamatban
-	Teljes kerítés kész, egyedi megjelenésű dizájn kivitelben
-	Elektromosan működtethető kapu, két autó számára kényelmes beállási lehetőség
Térfigyelő kamerarendszer kiépítve – ajtónyitásra automatikusan aktiválódik, így a ház teljesen biztonságos
Nyugodt, rendezett környezet, modern újépítésű házak szomszédságában
Ez az ingatlan azoknak készült, akik MINŐSÉGI, KORSZERŰ és BŐVÍTHETŐ otthont keresnek, ahol minden részlet a kényelmet, biztonságot és az eleganciát szolgálja.
 Költözésre kész, prémium családi ház tetőtérrel bővíthető lehetőséggel – 600 m²-es telken, egyedi megjelenéssel és teljes biztonsági rendszerrel!
Amennyiben az ingatlan megvásárlásához el kell adnia jelenlegi otthonát, úgy annak és a teljes folyamatnak a lebonyolításában is állok rendelkezésre!
További információkért forduljon hozzám bizalommal, hívjon a megadott telefonszámon - akár hétvégén is!
TOVÁBBI SZOLGÁLTATÁSAINK:
- Megbízható ügyvédi háttér
- INGYENES, FÜGGETLEN hitelügyintézés
- INGYENES, FÜGGETLEN biztosítási tanácsadás
- Energetikai tanúsítvány és ingatlan értékbecslés készítése
- Klíma rendszerek kiépítése és beüzemelése
- Riasztó- és kamera rendszerek kiépítése
- Közművek és szolgáltatók átírása
- Birtokbaadás lebonyolítása
- Kert- és tereprendezés
- Ingatlan takarítás
- Ingatlan felújítás
- Költöztetés
10 ÉVES SZAKMAI TAPASZTALATTAL!
#gonahome #tegyelprobara #keressbizalommal #mindenamiingatlan
                     
        
            https://ingatlanok.hu/elado/haz/nemesvamos/170-millio-ft;151-negyzetmeter;5-szoba;nincs-megadva-futes/11575962