Az értékesítő:
Tóth András
+36 70 587 9495

Eladó lakás Budapest XXIII. ker, 60 900 000 Ft, 49 négyzetméter

60 900 000 Ft
lakás, 49 négyzetméter
Építőanyag:
Tégla
Egész szobák:
3
Komfort fokozat:
Összkomfort
Ingatlan állapota:
Kitűnő
Azonosító:
11575978
Értékesítés típusa:
eladó
Ingatlan típusa:
lakás
Település:
Budapest XXIII. ker
Alapterület:
49
Ár:
60 900 000 Ft
Lift:
Nincs
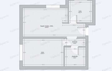
Kérem tekintse meg az ingatlanhoz tartozó virtuális sétát és videót mielőtt tovább olvas!   Eladó Budapest XXIII. kerület közkedvelt városrészén Soroksár-Újtelepen egy 49 nm-es I. emeleti, 3 szobás, újszerű lakás. Az ingatlan a telken található további 6 lakással együtt 2023-ban került átadásra. A lakóközösség kiváló, a légkör családias. Közös költség nincs. A tégla építésű ingatlan 10 cm-es szigetelést kapott és műanyag nyílászárók kerültek beépítésre. A megfelelő hőmérsékletet a hűtő-fűtő klímák és egy infrapanel biztosítja míg a használati meleg vízről az Ariston vízmelegítő gondoskodik.  A lakás rendezett mind esztétikailag és mind jogi viszonylatban. A mindennapi élethez szükséges valamennyi intézmény busztávra és gépkocsitávra is perceken belül megközelíthető. A soroksári Auchan 4 km-es távolságra található. Kifejezetten ajánljuk befektetőt és családok figyelmébe, akik szeretik a kertvárosias nyugodt környezetet, jó közlekedéssel egybekötve. Az ingatlan megfelel az OSP hitel és a CSOK feltételeinek. Amennyiben felkeltettem érdeklődését keressen fel bizalommal akár hétvégén is.
https://ingatlanok.hu/elado/lakas/budapest-xxiii-ker/61-millio-ft;49-negyzetmeter;3-szoba;tegla-epitesu/11575978