Az értékesítő:
Bugyi Zsuzsa
+36 30 409 2510

Eladó családi ház Tarcal, 19 900 000 Ft, 110 négyzetméter

19 900 000 Ft
családi ház, 110 négyzetméter
Építőanyag:
Tégla
Egész szobák:
3
Ingatlan állapota:
Azonosító:
11576476
Értékesítés típusa:
eladó
Ingatlan típusa:
családi ház
Jelleg:
Családi ház
Település:
Tarcal
Alapterület:
110
Telekterület:
900
Ár:
19 900 000 Ft
Fűtés jellege:
Konvektoros
Telekterület típusa:
négyzetméter
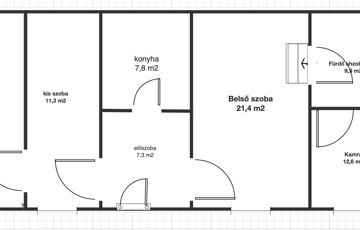
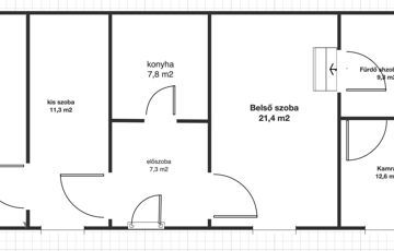
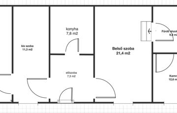
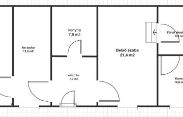
Tarcal központjában, a Tokaji borvídék szívében, a híres Andrássy kúria közelében, örök panorámás kilátással, a Világörökség részét képező bor út mentén, eladásra kínálunk egy 110 nm-es 3 szobás, külön konyhás, fürdőszobás, terméskőből épült gáz fűtéses családi házat, 900 nm-es telekkel, azonnal költözhetően. Az ingatlan Főbb jellemzői:  110 nm-es terméskő szerkezetű, tágas családi ház 3 tágas szoba, fűrdőszoba kényelmes elrendezés, jól kihasználható terek nyugodt, barátságos környezet, közvetlen közel a borút mentán, Andrássy kastélytól pár percre kíváló közlekedési lehetőségek kultúrális és történelmi nevezetességek, borászok a közelben A családi ház alatt húzódó Rákóczi korabeli pince rendszer miatt, az ingatlan befektetésre is kiválóan alkalmas (a pince rendszer feltárása és bejáratának a kialakítása a leendő tulajdonosra vár). A ház ideális választás családoknak, akik a természetet, a történelmet és a kúltúrát egyszerre szeretnék élvezni. Ne hagyja ki ezt a remek lehetőséget, hogy az otthona egy varázslatos borvidéken legyen . Kérem keressenek kérdéseikkel bizalommal. Az ingatlan azonosítója: 97203Érdeklődni: +36304092510 Az ingatlan azonosítója: 97203 Érdeklődni: +36304092510
https://ingatlanok.hu/elado/haz/tarcal/20-millio-ft;110-negyzetmeter;3-szoba;konvektoros-futes/11576476