Az értékesítő:
Szabolcsi Zoltán
+36 70 256 0693

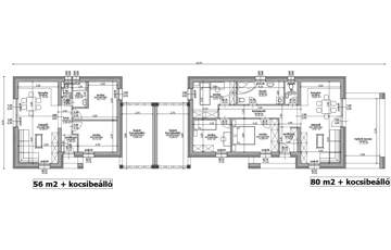
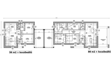
Eladó családi ház Nyíregyháza, Oros, 71 900 000 Ft, 95 négyzetméter

71 900 000 Ft
családi ház, 95 négyzetméter
Építőanyag:
Tégla
Egész szobák:
3
Ingatlan állapota:
Épülő
Azonosító:
11576478
Értékesítés típusa:
eladó
Ingatlan típusa:
családi ház
Jelleg:
Családi ház
Település:
Nyíregyháza
Alapterület:
95
Telekterület:
420
Ár:
71 900 000 Ft
Fűtés jellege:
Villany
Kor:
1-5 éves
Telekterület típusa:
négyzetméter
Nyíregyháza - Oros között, Kemence Csárda vonzásában, ÚJ ÉPÍTÉSŰ, 15nm-es garázsok mentén összeépített, 95 nm -es, 3 szoba + amerikai konyhás nappalival, külön fürdő és 2 wc-vel, 15 nm-es pergolás terasszal, választható járólap és laminált parketta burkolattal, elektromos padlófűtéssel, 3 rétegű műanyag nyílászárókkal redőnyökkel ellátva, 5 kw-os inverteres klímával a mai energetikai követelményeknek megfelelően, 420 nm-es telken, ikerház eladó. Kulcsátadás 100%-os készültség 2026 nyári átadássalAz ingatlan azonosítója: 97214Érdeklődni: +36702560693 Az ingatlan azonosítója: 97214 Érdeklődni: +36702560693
https://ingatlanok.hu/elado/haz/nyiregyhaza/72-millio-ft;95-negyzetmeter;3-szoba;villany-futes/11576478