Eladó lakás Nyíregyháza, Belváros, 43 630 000 Ft, 37 négyzetméter
        
            
                
                    
                        43 630 000 Ft
                        
                            lakás, 37 négyzetméter                        
                                                    
                                                    
                                                    
                                                    
                                                    
                                Értékesítés típusa: 
                                eladó
                             
                                                    
                                                    
                                                    
                                                    
                                                    
                                                    
                                                    
                                                    
                        
                     
                 
                
             
         
        
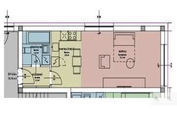
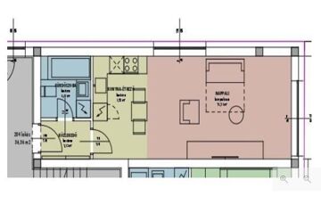
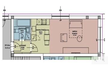
                            Belváros szívében Kossuth utcán eladásra kínálok egy 36,36 nm alapterületű 1 szobás garzonlakást mely 2026 nyarán átadásra kerülő 4 szintes liftes társasház első emeletén található.Az ingatlan A + besorolású,Prémium kivitelezés – hőszivattyús fűtés-hűtés, padlófűtés, 3 rétegű nyílászárók,Belső, zöld udvar – játszótérrel, pihenőterekkel a nyugodt életért,parkolás megvásárolható teremgarázsban megoldott melynek ára mérettől függően 7,8 M + Áfa tól elérhető.Ez az utolsó ilyen méretű lakás ne szalassza el a lehetőséget ! Az ingatlan azonosítója: 97478Érdeklődni: +36209268433 Az ingatlan azonosítója: 97478 Érdeklődni: +36209268433                    
        
            https://ingatlanok.hu/elado/lakas/nyiregyhaza/44-millio-ft;37-negyzetmeter;1-szoba;tegla-epitesu/11576514