Az értékesítő:
Pápai Béla
+36 20 922 2558

Eladó családi ház Nyírpazony, 82 000 000 Ft, 105 négyzetméter

82 000 000 Ft
családi ház, 105 négyzetméter
Építőanyag:
Tégla
Egész szobák:
3
Ingatlan állapota:
Épülő
Azonosító:
11576710
Értékesítés típusa:
eladó
Ingatlan típusa:
családi ház
Jelleg:
Családi ház
Település:
Nyírpazony
Alapterület:
105
Telekterület:
700
Ár:
82 000 000 Ft
Fűtés jellege:
Geotermikus
Telekterület típusa:
négyzetméter
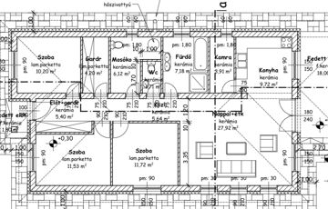
Nyírpazonyban csendes zsák utcájában eladásra kínálok egy újonnan épülő, 105 m²-es, 3 szoba, nappalis, étkezős, önálló tégla építésű szigetelt családi házat. Az ingatlan átadása várhatóan 2026 májusában lesz. Információk az ingatlanról: Telek: 700 m² Tégla építés Cserép tető Fűtés: hőszivattyús rendszer Helyiségek: előszoba, nappali, étkező, konyha, kamra, 3 szoba, fürdőszoba, WC, gardrób, mosókonyha 18 m²-es fedett terasz kerítés és térkövezés az árban kedvezményes hitel Ha hirdetés felkeltette érdeklődését  és több információra van szüksége hívjon bizalommal. Az ingatlan azonosítója: 98926Érdeklődni: +36209222558 Az ingatlan azonosítója: 98926 Érdeklődni: +36209222558
https://ingatlanok.hu/elado/haz/nyirpazony/82-millio-ft;105-negyzetmeter;3-szoba;geotermikus-futes/11576710