Az értékesítő:
Bujdosó Judit
+36 30 589 0763

Eladó üdülő/nyaraló Tihany, 173 000 000 Ft, 150 négyzetméter

173 000 000 Ft
üdülő/nyaraló, 150 négyzetméter
Azonosító:
11576830
Értékesítés típusa:
eladó
Ingatlan típusa:
üdülő/nyaraló
Jelleg:
Nyaraló
Település:
Tihany
Alapterület:
150
Telekterület:
901
Ár:
173 000 000 Ft
Telekterület típusa:
Négyzetméter
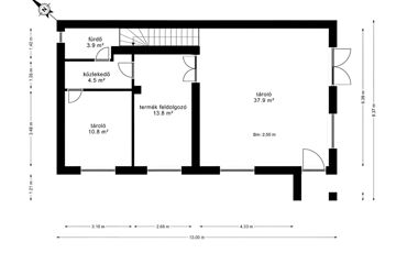
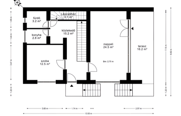
Eladó nyaraló Tihany lenyűgöző panorámájú részén! Öné lehet egy páratlan lokációjú lehetőség Tihany Kopasz-hegyi településrészén! Háromszintes családi vagy apartman nyaraló, csendes utcában, zöld övezetben várja új tulajdonosát. Az ingatlan 150 m²-es hasznos lakótérrel rendelkezik, egy 901 m²-es parkosított külön használatú elzárt telekrészen. Az ikerházrész belső 3 szintes kialakítású, minden szinten 1-1 kényelmes nappali, szoba és fürdőszoba alakítható ki, így ideális választás nagyobb családok vagy baráti társaságok számára is. Az épület állapota teljes külső-belső felújítást igényel, de ez több lehetőséget is ad arra, hogy saját ízlésére alakítsa ezt a sok potenciállal rendelkező otthont. A nyaraló további előnyei közé tartozik az alacsony fenntartási költség, a kertkapcsolat, amely tökéletes helyszín a pihenésre és a természet közelségének élvezetére. Az udvari gépjárműbeálló több autó rendelkezésére állhat, így egyszerűen megoldható a parkolás és nincs gond a biztonságos elhelyezésre. Tihany varázslatos ikonikus környezete és különleges atmoszférája mindenkit magával ragad. Ne hagyja ki ezt a lehetőséget! Kérjen időpontot még ma, és győződjön meg személyesen ennek az ingatlannak a kivételes lokális adottságairól! (További képekért és információkért kérem hívjon!)
https://ingatlanok.hu/elado/udulo_nyaralo/tihany/173-millio-ft;150-negyzetmeter;0-szoba;nyaralo-jellegu/11576830