Az értékesítő:
Urbán László
+36 20 333 6892

Eladó családi ház Újlengyel, 78 000 000 Ft, 88 négyzetméter

78 000 000 Ft
családi ház, 88 négyzetméter
Építőanyag:
Tégla
Egész szobák:
4
Komfort fokozat:
Összkomfort
Ingatlan állapota:
Kitűnő
Azonosító:
11576834
Értékesítés típusa:
eladó
Ingatlan típusa:
családi ház
Jelleg:
Ikerház
Település:
Újlengyel
Alapterület:
88
Telekterület:
450
Ár:
78 000 000 Ft
Fűtés jellege:
Cirkó
Erkély:
Van
Bútorozott:
Nem bútorozott
Telekterület típusa:
négyzetméter
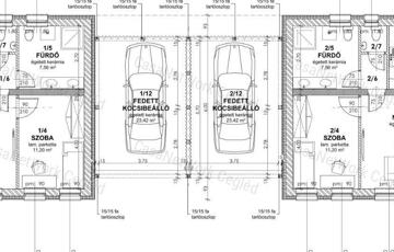
<p>A CasaNetWork Ingatlanhálózat ceglédi irodája eladásra kínálja  174602160 Id számú új építésú lakást Újlengyelben.</p><p>ELADÓ Újlengyelben, csendes és nyugodt környezetben eladó egy új építésű ikerház 2. számú lakása, melynek átadása 2026. szeptemberében várható. Az ingatlan 88 m² fűtött lakótérrel rendelkezik, melyhez egy 23,4 m²-es, az épülethez kapcsoltan megépített garázs tartozik. A két lakást a garázsok választják el egymástól, ezáltal biztosítva a maximális nyugalmat és intimitást a leendő tulajdonosok számára.</p><p>A ház tégla falazattal és 10 cm hőszigeteléssel készül, a válaszfalak szintén téglából épülnek. A tetőfedés Leier cseréppel történik. A fűtésről gázkazán és hőszivattyú gondoskodik, a nyári komfortot pedig beépített klíma biztosítja. A nyílászárók műanyagból készülnek, redőnnyel felszerelve. A burkolatok szabadon választhatók, hidegburkolat esetén 4.000 Ft/m², melegburkolat esetén pedig 3.000 Ft/m² értékhatárig. Természetesen ha magasabb árú burkolatokat választ az új tulajdonos , értékegyeztetéssel megoldható.</p><p>A lakás elosztása praktikus és élhető: három hálószoba (11,55 m², 12,07 m² és 11,02 m²), tágas 24,85 m²-es nappali, 6,75 m²-es konyha, 8,25 m²-es étkező, 7,56 m²-es fürdőszoba, külön WC (1,54 m²) és egy előtér (1,65 m²) alkotják a belső teret.</p><p>Az ingatlan modern, energiatakarékos kialakítású, ideális választás családok számára, akik csendes, de jól megközelíthető környezetben keresnek új otthont. A lakás kulcsrakész állapotban kerül átadásra 2026 szeptemberében, a burkolatok és belső részletek pedig az új tulajdonos ízlésére szabhatók.</p><p>Irodánk teljes körű segítséget tud nyújtani hitelekhez és az összes államilag finanszírozott családi támogatásokhoz!</p><p>Ha felkeltette érdeklődését, hívjon bátran és szívesen megmutatom!</p><p>Megtekintése kizárólag előre egyeztetett időpontban lehetséges!</p><p>Amennyiben a CasaNetWork – Cegléd kínálatában szereplő, 174602160 azonosítószámú új építésű lakás vagy bármely más ingatlan felkeltette érdeklődését, forduljon hozzánk bizalommal a megadott elérhetőségeken!</p><p>Felhívjuk figyelmét, hogy a hirdetésben szereplő információk megbízónktól származnak, ezért azok pontosságáért felelősséget nem tudunk vállalni.</p><p>Ügyfeleink számára díjmentes, bankfüggetlen hitelügyintézést biztosítunk.</p><p>CasaNetWork – Ingatlanban otthon vagyunk.</p>
https://ingatlanok.hu/elado/haz/ujlengyel/78-millio-ft;88-negyzetmeter;4-szoba;cirko-futes/11576834