Az értékesítő:
Fenyvesi Marianna
+36 20 981 3790

Eladó családi ház Pécel, 89 500 000 Ft, 111 négyzetméter

89 500 000 Ft
családi ház, 111 négyzetméter
Építőanyag:
Szilikát
Egész szobák:
3
Komfort fokozat:
Dupla komfort
Fűtés módja:
Gáz
Ingatlan állapota:
Azonosító:
11576891
Értékesítés típusa:
eladó
Ingatlan típusa:
családi ház
Jelleg:
Családi ház
Település:
Pécel
Alapterület:
111
Telekterület:
665
Ár:
89 500 000 Ft
Szintek száma:
2 szint
Fűtés jellege:
Héra
Kor:
21-50 éves
Terasz:
Van
Pince:
Van
Telekterület típusa:
négyzetméter
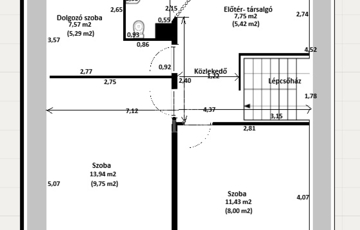
CSAK NÁLUNK! Tele LEHETŐSÉGGEL! Pécelen, a Kelő Lakópark peremén, 665 m² telken kínálunk eladásra egy háromszintes, dupla komfortos önálló családi házat. A ház fűtött alapterülete 111,93 m² (99,7m² ), bruttó alapterülete 140,24 m².A bruttó alapterület számításakor az emelet 70 %-ban a pince 30%-ban, a terasz és erkély 50%-ban került beszámításra. Az ingatlan három plusz két szobás, jól átgondolt elrendezésű. Az épületet 1984-ben kezdték építeni, és 1986-ban kapta meg a használatbavételi engedélyt. A falazat szilikát, a tető cserépfedésű, a födém vasbeton gerendás. A külső nyílászárók hőszigetelt, kétrétegű üvegezésű fa ablakok. A fűtés gázkazán, radiátoros hőleadással. A melegvizet a földszinten, gázbojler az emeleten villanybojler adja. A z ingatlant beépített, üvegezett teraszon keresztül jutunk a földszinti lakótérbe, melynek nettó alapterülete 68,42 m². Itt két szoba, konyha, étkező, kamra, fürdőszoba, közlekedő és lépcsőház található. Világos, jól szellőző, praktikus elrendezésű tér fogad. A felső szinten két hálószoba, egy dolgozószoba, egy társalgó és egy fürdőszoba került kialakításra. A helyiségek tágasak, a nagy ablakoknak köszönhetően világosak. A pince szint 70,3 m², ahol fűtött, 25 m² garázs, hobby szoba, szárítóhelyiség, valamint kazánház, kamra- tároló, és gázmérő helység kapott helyet. A ház 3 x 16 amperes áramellátással rendelkezik. A kert rendezett, parkosított, kellemes környezetet biztosít családosoknak, pihenni vágyóknak vagy akár kétgenerációs használatra is. A beépített terasz alatt tárolót találunk. Ez az ingatlan ideális választás azoknak, akik tágas, több szintes családi házat keresnek zöldövezeti környezetben, mégis a főváros közelében. Az ingatlan PER, TEHER, IGÉNY MENTES! Jöjjön el nézze meg, szeressen bele, és tegyen ajánlatot! Közlekedés: Az új felüljáró átadása óta a gépjárművel való közlekedés kiváló. Pár perc az M0 autóút. A gyalogos közlekedés: a helyi buszjárat 5 perc séta, ami a vasútállomásra, a városközpontba visz. Érinti az iskolát, óvodát, üzletet. A központban csatlakozik a korszerűsített vasúthoz, ami a Keleti pályaudvarra megy, és a 169 E buszhoz, ami az Örs vezér térre visz ki. Itt felülhet az ingyenes AUCHAN járatra is, amivel Maglódra mehet. A GDN HitelCentrum, KÖTELEZETTSÉG MENTESEN és DÍJMENTESEN, versenyezteti Önért a bankok hitelajánlatait. Ismerje meg a vissza nem térítendő állami támogatásokat! • CSOK+, • babaváró, • hitel, • megtakarítás, • és egyéb banki tranzakcióban segítségére lehetünk! • Ügyvédi hátteret tudunk biztosítani! Ha az ingatlannal kapcsolatban bővebb felvilágosításra lenne szüksége, hívjon bizalommal, állok rendelkezésére! Videó link: https://youtu.be/Z7L-Z13KeiQ F.M.
https://ingatlanok.hu/elado/haz/pecel/90-millio-ft;111-negyzetmeter;5-szoba;hera-futes/11576891