Eladó családi ház Nyáregyháza, 71 000 000 Ft, 90 négyzetméter
        
            
                
                    
                        71 000 000 Ft
                        
                            családi ház, 90 négyzetméter                        
                                                    
                                                    
                                                    
                                                    
                                                    
                                                    
                                Értékesítés típusa: 
                                eladó
                             
                                                    
                                Ingatlan típusa: 
                                családi ház
                             
                                                    
                                                    
                                                    
                                                    
                                                    
                                                    
                                Szintek száma: 
                                Földszintes
                             
                                                    
                                                    
                                                    
                                Telekterület típusa: 
                                négyzetméter
                             
                        
                     
                 
                
             
         
        
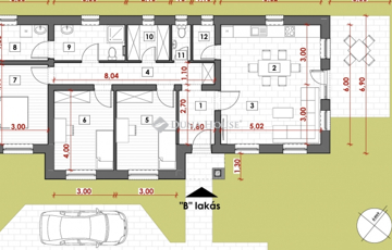
                            Felső Nyáregyházán Újépítésű ikerház fél!Nyáregyháza központi részén kínálom megvételre ezt a 99 nm alapterületű ikerházfelet. Műszaki leírás : -Beton alap-30-as Leier tégla-15 cm hungarocell szigetelés-Drapp színű nemes vakolat homlokzati záró réteg -Bramac tetőcserép ( barna szinben )-3 rétegű egy színű ablakok-Hőszivattyús fűtésrendszer ( padlón keresztül történő hőleadással )-1 db hűtő-fűtő klíma ( nappaliban )- Napelemes rendszer előkészítése ( napelemek nélkül )Hideg- Meleg burkolatok 6000 Ft / nm árban választhatóak-Szaniterek , beltéri ajtók és lámpatestek az árban . Várható átadás : 2026. 08. hóMegtekintéskor a teljes műszaki tartalmat prezentálom !Amennyiben hirdetésem felkeltette érdeklődését várom megtisztelő hívását a hét bármely napján .
 71000000 Ft                    
        
            https://ingatlanok.hu/elado/haz/nyaregyhaza/71-millio-ft;90-negyzetmeter;4-szoba;villany-futes/11576991