Az értékesítő:
Szaszala Zsolt
+36 70 469 3681

Eladó iroda/üzlethelyiség Hajdúnánás, 119 000 000 Ft, 300 négyzetméter

119 000 000 Ft
iroda/üzlethelyiség, 300 négyzetméter
Azonosító:
11577674
Értékesítés típusa:
eladó
Ingatlan típusa:
iroda/üzlethelyiség
Jelleg:
Iroda
Település:
Hajdúnánás
Alapterület:
300
Ár:
119 000 000 Ft
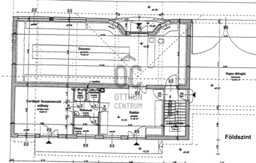
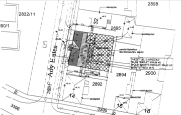
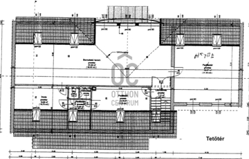
Belvárosi, 8 szobás, klimatizált üzletház eladó Hajdúnánáson – kiváló befektetés, jelenleg is bérbeadott! Hajdúnánás belvárosában, frekventált helyen, 540 m²-es telken kínálunk eladásra egy kétszintes, 8 szobás, klimatizált üzletházat, mely jelenleg teljes egészében bérbeadott, így azonnali hozamot biztosít új tulajdonosának. Az ingatlan a kétezres évek elején épült, beton alapra, tégla falazattal, cserepeslemez tetővel. Alapterülete: 325 m² (nettó 281 m²). Fűtését gázkazán biztosítja, emellett 5 darab hűtő-fűtő klíma gondoskodik a kellemes hőmérsékletről egész évben. Helyiségek beosztása: Földszint: 1 db 75 m²-es, utcafronti, nagy helyiség 2 külön szoba (22 és 20 m²) Konyha, WC, kézmosó, lépcsőház Tetőtér: 82/66 m²-es nagy szoba 42/31 m²-es szoba 2 kisebb szoba (21/11 m² és 19/10 m²) WC, tusoló, lépcsőház A teljesen térkövezett udvar akár 8 autó parkolására is alkalmas, valamint található rajta egy kb. 20 m²-es különálló épület, amelyben szoba, fürdőszoba és WC került kialakításra – lakhatásra vagy irodának is kiváló. Tulajdoni lapon: kivett lakóház, udvar, műszaki bolt megnevezés szerepel. Főbb jellemzők: Központi, belvárosi elhelyezkedés 540 m² telek, 325/281 m² hasznos alapterület 8 szoba + konyha + szociális helyiségek Gázkazán és 5 klíma (hűtés-fűtés) Parkoló: akár 8 autó részére Különálló, 20 m²-es lakható melléképület Stabil bérlői háttér, azonnali hozam Ár alkuképes! Kiváló választás befektetőknek, vállalkozóknak, vagy akár többfunkciós irodaháznak, rendelőnek, panziónak is. Jelenlegi bérleti szerkezete biztos, folyamatos bevételt nyújt! Az ingatlan megtekintése kizárólag előre egyeztetett időpontban lehetséges. Hívjon bizalommal – ne maradjon le erről a lehetőségről!
https://ingatlanok.hu/elado/iroda/hajdunanas/119-millio-ft;300-negyzetmeter;iroda-jellegu;nincs-megadva-berendezett/11577674