Az értékesítő:
Lőkös Zoltán
+36 70 429 5999

Eladó lakás Miskolc, Diósgyőr, 22 450 000 Ft, 55 négyzetméter

22 450 000 Ft
lakás, 55 négyzetméter
Építőanyag:
Tégla
Egész szobák:
3
Komfort fokozat:
Összkomfort
Ingatlan állapota:
Átlagos
Azonosító:
11578256
Értékesítés típusa:
eladó
Ingatlan típusa:
lakás
Település:
Miskolc
Alapterület:
55
Ár:
22 450 000 Ft
Tulajdonviszony:
Saját
Emelet:
3. emelet
Fűtés jellege:
Konvektoros
Elhelyezkedés:
Társasház
Kilátás:
utcai
Erkély:
Nincs
Kertkapcsolat:
Nincs
Kocsibeálló:
Nincs
Pince:
Van
Tároló:
Van
Lift:
Nincs
Klíma:
Nincs
Bútorozott:
Nem bútorozott
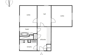
Miskolc, Diősgyőr elején a Kondor Béla utca 8. szám alatt, kitűnő elhelyezkedésű, 3 emeletes társasház 3. emeletén, K-Ny-i tájolású, összkomfortos, tehermentes, 55 nm-es, 3 szobás lakás, saját pincével együtt, kiváló lakóközösségben eladó. A lakás könnyedén 2 szoba plusz nappalissá alakítható, valamint csendes környéken remek tömegközlekedési kapcsolatokkal és bevásárlási lehetőségekkel rendelkezik. Közelben Rendelő, iskola, óvoda, sportpálya stb. Lakás felújításai: - nyílászárók cseréje, burkolás, konyhaszekrény csere, 1 db konvektor csere, használati vízmelegítő cserélye Helyiséglista: - 3 szoba, előszoba, konyha, kamra, fürdőszoba WC-vel, pince A lakás könnyedén 2 szoba plusz nappalissá alakítható, ahogy a mellékelt alaprajzon látható! Ir. ár: 22,45 M További információért kérem keressen telefonon
https://ingatlanok.hu/elado/lakas/miskolc/22-millio-ft;55-negyzetmeter;3-szoba;tegla-epitesu/11578256