Az értékesítő:
Horváth Tamás
+36 30 992 9785

Eladó ipari ingatlan Pécs, 190 000 000 Ft, 318 négyzetméter

190 000 000 Ft
ipari ingatlan, 318 négyzetméter
Ingatlan állapota:
Átlagos
Azonosító:
11578359
Értékesítés típusa:
eladó
Ingatlan típusa:
ipari ingatlan
Jelleg:
Raktár
Település:
Pécs
Alapterület:
318
Ár:
190 000 000 Ft
Telekterület típusa:
Négyzetméter
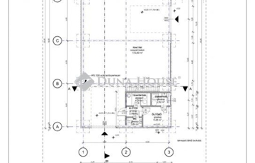
Újépítésű csarnokok eladók / kiadók a Pécsi Déli Ipari ParkbanA Pécsi Déli Ipari Parkban egymás mellett elhelyezkedő, modern kivitelezésű, újépítésű csarnokok eladók és kiadók. Az épületek megfelelnek a legújabb ipari és kereskedelmi követelményeknek, kiváló hőszigeteléssel és nagy teherbírású ipari aljzattal rendelkeznek.Főbb jellemzők:200 és 300 m²-es, újépítésű csarnokokKiváló hőszigetelés, ipari padló nagy teherbírássalAlkalmas raktározásra, kereskedelmi vagy ipari tevékenységreModulárisan bérelhető vagy megvásárolható egységekLokáció:Autópálya közvetlen közelében, logisztikai szempontból kiemelkedő helyenPécs belvárosától 10 perc autóvalRendszeres buszjárat biztosítja a könnyű megközelíthetőségetIdeális választás azoknak a cégeknek, akik magas színvonalú, jól megközelíthető és költséghatékony ipari vagy kereskedelmi ingatlant keresnek. Referencia szám: IP060363
https://ingatlanok.hu/elado/ipari_ingatlan/pecs/190-millio-ft;318-negyzetmeter;raktar-jellegu;nincs-megadva-tulajdonviszony/11578359