Az értékesítő:
Göbölyös Judit
+36 70 269 5029

Eladó családi ház Kecskemét, 55 000 000 Ft, 105 négyzetméter

55 000 000 Ft
családi ház, 105 négyzetméter
Egész szobák:
3
Komfort fokozat:
Komfort
Ingatlan állapota:
Átlagos
Azonosító:
11578698
Értékesítés típusa:
eladó
Ingatlan típusa:
családi ház
Jelleg:
Családi ház
Település:
Kecskemét
Alapterület:
105
Telekterület:
900
Ár:
55 000 000 Ft
Szintek száma:
Földszintes
Fűtés jellege:
Egyéb
Kor:
50 évesnél régebbi
Terasz:
Van
Pince:
Van
Telekterület típusa:
négyzetméter
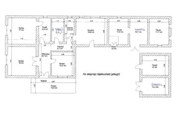
Eladó önálló családi ház Kecskeméten! Kecskeméten a Boróka lakópark közelében kínálunk megvételre egy 105 nm alapterületű, 1972-ben salaktéglából épült, önálló családi házat 900 nm-es telken. Az ingatlan közepes állapotú, tágas, nagy terekkel rendelkezik. Beosztása: - előszoba 8,7 mm, - szoba 17 nm, - szoba 19 nm, - szoba 12,3 nm, - konyha 18,8 nm, - kamra 3,4 nm, - fűrdőszoba+ WC 6,5 nm, - folyosó 5,1 nm, - tároló 6,4 nm, _------------------------------ Összesen: 97,2 nm - fedett terasz 15,6 nm, - pince 12,0 nm, - tároló 11,6 nm, - tároló 11,7 nm, - tároló 12,0 nm, - garázs 10,7 nm, - garázs 10,3 nm, Közművek tekintetében, víz, villany a házba bekötve, gázcsonk az udvarban, csatorna nincs. Az ingatlan ügyvédi megosztással kerül értékesítésre, akár nagyobb telekkel is megvásárolható. Teljes telek terület 2502 nm. Amivel segítjük az Ön ingatlanvásárlását: - ingyenes hitelügyintézés, - jogi háttér, - földhivatali ügyintézés, - energetikai tanúsítvány, - a vevő számára az ingatlanközvetítés ingyenes. Irodánk 30 éves szakmai tapasztalattal áll ügyfelei rendelkezésére! Várom szíves megkeresését!
https://ingatlanok.hu/elado/haz/kecskemet/55-millio-ft;105-negyzetmeter;3-szoba;egyeb-futes/11578698