Az értékesítő:
Gorzsás Zsuzsanna
+36 70 708 1730

Eladó családi ház Hajdúhadház, 37 500 000 Ft, 78 négyzetméter

37 500 000 Ft
családi ház, 78 négyzetméter
Építőanyag:
Tégla
Egész szobák:
3
Ingatlan állapota:
Átlagos
Azonosító:
11579030
Értékesítés típusa:
eladó
Ingatlan típusa:
családi ház
Jelleg:
Családi ház
Település:
Hajdúhadház
Alapterület:
78
Telekterület:
730
Ár:
37 500 000 Ft
Fűtés jellege:
Cirkó
Terasz:
Van
Erkély:
Nincs
Beépíthető tetőtér:
Nincs
Melléképület:
Nincs
Pince:
Van
Klíma:
Nincs
Telekterület típusa:
négyzetméter
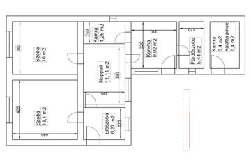
Hajdúhadház csendes, központhoz közeli utcájában eladó egy 78 m² alapterületű, 3 szobás családi ház, rendezett, körbekerített telken, nyugodt környéken. Az ingatlan összközműves, tehermentes, aszfaltozott utcában található, folyamatosan karbantartott, jó állapotú, masszív szerkezetű épület. Főbb jellemzők: • 1960-as években épült terméskő alapra, vályog falazattal, palatetővel • 1970-es években bővítve beton alappal, B30-as tégla falazattal • Fűtés: gázkazán + radiátorok, valamint cserépkályha (átlagos téli költség: kb. 15.000 Ft/hó) • Nyílászárók: korszerű, műanyag hőszigetelt, redőnnyel és szúnyoghálóval • Burkolatok: hajópadló, laminált padló, járólap – a vizesblokkok és burkolatok kb. 15 éve lettek felújítva • Praktikus, egyedi konyhabútor az ár részét képezi • 5 m² száraz pince • Nyári konyha + zárható és nyitott tárolók (kb. 30 m²) • Kisállattartásra alkalmas épületek • Ásott kút az öntözéshez • Dísznövények, rózsák, magnóliafa és termő szőlőlugas A ház elhelyezkedése kiváló: óvoda, iskola, orvosi rendelő, tömegközlekedés és a városközpont 5-10 perc sétával elérhető. Ez az ingatlan ideális választás lehet családoknak, akik jó állapotú, azonnal költözhető otthont keresnek Hajdúhadházon. A családi ház megfelel az Otthonteremtési támogatások feltételeinek, így CSOK és Otthon Start hitel igénybevételére is alkalmas! Az ingatlan rugalmasan megtekinthető. Jöjjön, nézze meg, hívjon még ma időpont egyeztetés miatt. (További képekért és információkért kérem hívjon!)
https://ingatlanok.hu/elado/haz/hajduhadhaz/38-millio-ft;78-negyzetmeter;3-szoba;cirko-futes/11579030