Az értékesítő:
Gorzsás Zsuzsanna
+36 70 708 1730

Eladó telek/földterület Debrecen, 195 000 000 Ft, 535 Négyzetméter

195 000 000 Ft
telek/földterület, 535 Négyzetméter
Azonosító:
11579041
Értékesítés típusa:
eladó
Ingatlan típusa:
telek/földterület
Jelleg:
Belterület
Település:
Debrecen
Telekterület:
535
Ár:
195 000 000 Ft
Telekterület típusa:
Négyzetméter
Víz:
Telken belül
Gáz:
Telken belül
Villany:
Telken belül
Csatorna:
Telken belül
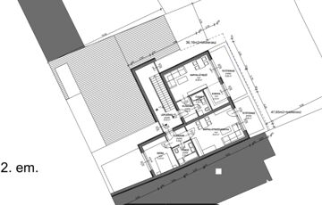
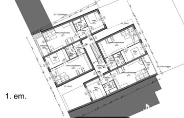
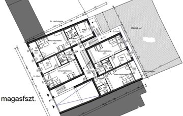
Befektetők, fejlesztők figyelem! Kiviteli és látványtervekkel rendelkező építési telek eladó, vagy 8 lakásos társasház építésének megvalósulásához befektetőt (csendestársat) keresünk! Debrecen belvárosa - 535 m²-es építési telek - 8 lakásos társasház építésére érvényes kiviteli és látványterv - Övezeti besorolás: Vt-Vk - Beépíthetőség: 60% - Építménymagasság: 9,5 m - Terepszint feletti szintterületi mutató 1,75 - 16 m utcafront, 30 m mélység - látványtervek készen, mélygarázs építésére vonatkozó kiviteli tervvel együtt - telek minden közművel ellátott. Miért érdemes Debrecenben építeni? - Gyorsan fejlődő város: Debrecen az ország egyik legdinamikusabban növekvő városa, folyamatosan bővülő ipari, oktatási és szolgáltatási szektorral. - Növekvő ingatlanpiac: Az egyre nagyobb kereslet a lakóingatlanok iránt garantálja a befektetés értékállóságát és gyors megtérülését. - Egyetemi központ: A Debreceni Egyetem vonzza a magyar és külföldi hallgatókat, akik számára a belváros közeli lakások kifejezetten keresettek. - Kiváló infrastruktúra: Modern közlekedési kapcsolatok, autópálya, nemzetközi repülőtér és fejlett tömegközlekedés. - Zöld jövő: A város kiemelt figyelmet fordít a zöldterületek növelésére és az élhetőbb városi környezet kialakítására. Ideális lehetőség beruházóknak, ingatlanfejlesztőknek, akik egy kiemelkedő lokációban szeretnének építeni! A fejlesztési tervek szerint az ingatlan előtti környezet zöldterületté alakul, növelve a fejlesztés értékét és a lakók kényelmét. Rendezett tulajdoni viszonyokkal, azonnal birtokba vehető. További információkért hívjon a hét bármely napján! (További képekért és információkért kérem hívjon!)
https://ingatlanok.hu/elado/telek_foldterulet/debrecen/195-millio-ft;535-negyzetmeter;epitesi-telek-besorolas;van-kozmu/11579041