Az értékesítő:
Kálya Réka
+36 70 500 9226

Eladó családi ház Nyíregyháza, Oros, 59 900 000 Ft, 71 négyzetméter

59 900 000 Ft
családi ház, 71 négyzetméter
Építőanyag:
Tégla
Egész szobák:
2
Ingatlan állapota:
Épülő
Azonosító:
11579600
Értékesítés típusa:
eladó
Ingatlan típusa:
családi ház
Jelleg:
Családi ház
Település:
Nyíregyháza
Alapterület:
71
Telekterület:
300
Ár:
59 900 000 Ft
Fűtés jellege:
Villany
Telekterület típusa:
négyzetméter
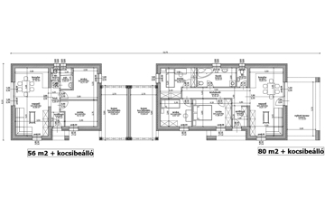
Nyíregyháza Oroson 2026 nyári átadással eladásra kínálunk garázsok mentén összeépített családi ikerházat. 1. ikerház: 300 nm-es telek, 71,5 nm-es ház, N+2 szoba, 15 nm-es terasz, 15 nm-es garázs, 1 fürdő és 2 wc, választható járólap és laminált parketta burkolattal, elektromos padlófűtéssel, 1 db inverteres klímával, 3 réteg üvegezésű műanyag nyílászárókkal redőnyözve, 15 cm homlokzati, 30 cm födém szigeteléssel Ár: 59,9 M Ft 2. ikerház 420 nm-es telek, 95 nm-es ház, N+3 szoba, 15 nm-es terasz, 15 nm-es garázs, 1 fürdő és 2 wc, választható járólap és laminált parketta burkolattal, elektromos padlófűtéssel, 1 db inverteres klímával, 3 réteg üvegezésű műanyag nyílászárókkal redőnyözve, 15 cm homlokzati, 30 cm födém szigeteléssel Ár: 69,9 M Ft További kérdés esetén keressen bizalommal.Az ingatlan azonosítója: 97231Érdeklődni: +36705009226 Az ingatlan azonosítója: 97231 Érdeklődni: +36705009226
https://ingatlanok.hu/elado/haz/nyiregyhaza/60-millio-ft;71-negyzetmeter;2-szoba;villany-futes/11579600