Az értékesítő:
Lázár Hajnalka
+36 70 426 7736

Eladó családi ház Dunaharaszti, 164 700 000 Ft, 122 négyzetméter

164 700 000 Ft
családi ház, 122 négyzetméter
Építőanyag:
Tégla
Egész szobák:
5
Komfort fokozat:
Dupla komfort
Ingatlan állapota:
Átlagos
Azonosító:
11579688
Értékesítés típusa:
eladó
Ingatlan típusa:
családi ház
Jelleg:
Ikerház
Település:
Dunaharaszti
Alapterület:
122
Telekterület:
405
Ár:
164 700 000 Ft
Telekterület típusa:
négyzetméter
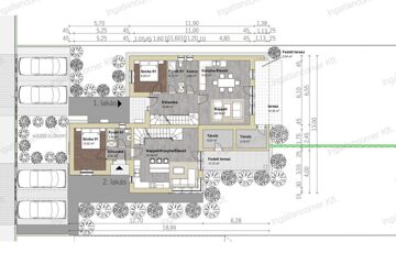
Ritka lehetőség a Bezerédi lakóparkban, az első ütem területén a már gyönyörűen kialakított, átmenő forgalom mentes utcában eladó ikerház, saját elkerített kerttel, kocsi beállókkal. 1.lakás akcióban e hónapban! Több évtizedes tapasztalattal rendelkező kivitelező legújabb projektje! Az épület magas műszaki tartalommal készül, mai kornak és elvárásoknak megfelelően. A két lakás között DUPLA hang-gátló fal készül és külön kerül kiöntésre a födém is. Magas hangsúlyt fektettek a két lakás külön választására, hogy mindkettő lakó funkció önálló ház életérzését nyújtsa! Átadás 2026. június - július Elhelyezése kiváló, csendes családi házas utca, pár perc sétára bölcsőde, óvoda, játszótér, vonat állomás, buszmegálló, kis bolt. Lakás 1 Alapterület: 122,13 m² Elosztás: Saját kert rész 400m² 2 fürdőszoba 4 hálószoba 2 fürdőszoba 1 gardrób Ár: 164 700 000 Ft Lakás 2 Alapterület: 107,97 m² Elosztás: Sajtát kert rész 400m² 2 fürdőszoba 4 hálószoba 2 fürdőszoba Ár: 156 600 000 Ft ( Most 149.900.000 Ft AKCIÓS ÁR) -Korszerű hőszivattyús fűtés és hűtés -Padló, mennyezeti és fal fűtés-hűtés -Építési mód: 30-as POROTHERM tégla -Szigetelés: 15 cm EPS szigetelés -Födém: monolit beton -Tetőszerkezet: TERRÁN Zenit Resistor cserép, carbon grafit színben -Nyílászárók: műanyag, 3 rétegű, antracit színű kívül-belül. -Energiatakarékos A+ besorolás -Választható burkolatok, a műszaki tartalomban meghatározott kereten belül. -Szerkezete vasbetonnal erősített Prémium műszaki tartalom kérhető extra felár ellenében: - Napelem alapszerelése - Okos otthon kialakítása - Prémium burkolatok - Elektromos redőnyök, ablakokon szúnyoghálóval. - Épített kerítés - Fedett terasz - Tároló - Térkövezés - Üvegkorlát Jöjjön el, tekintse meg az ingatlant! Szívből ajánlom minden olyan érdeklődőnek, akinek fontos a minőség és kényelem, a jó közlekedés és valamint a központhoz való pár perc alatti közelség, mégis megnyugtató szigetként funkcionáló meghitt családi otthon! Várom hívását! Amennyiben nem tudom felvenni a telefont, hamarosan visszahívom! Hétvégén és esténként is nyugodtan kereshet bizalommal! Független, ingyenes hitel-CSOK ügyintézéssel segítem kedves Ügyfeleimet, igen kedvező hitelekkel 2025-ben is! Mivel ingatlanirodánk építész és ingatlanfejlesztő irodával párosul, így minden hiteles szakmai segítséget meg tudunk adni, mellyel segíteni tudjuk döntését (könyvelő, ügyvéd, energetikai tanúsítvány, kivitelezők, szakértői vélemények....)! Ha a vásárláshoz el szeretné adni a jelenleg meglévő ingatlanját, ebben is nagyon szívesen segítek. Az Ingatlancorner kft. igen alacsony közvetítői díjjal, a legmagasabb színvonalon képviseli az Ön érdekeit. Ellenőrzött prémium partnerként várom megtisztelő bizalmát!
https://ingatlanok.hu/elado/haz/dunaharaszti/165-millio-ft;122-negyzetmeter;5-szoba;nincs-megadva-futes/11579688