Az értékesítő:
Gergelyné Duhaj Erika
+36 30 486 3867

Eladó családi ház Nyáregyháza, 79 900 000 Ft, 90 négyzetméter

79 900 000 Ft
családi ház, 90 négyzetméter
Építőanyag:
Tégla
Egész szobák:
4
Komfort fokozat:
Összkomfort
Fűtés módja:
Hőszivattyú
Ingatlan állapota:
Épülő
Azonosító:
11579764
Értékesítés típusa:
eladó
Ingatlan típusa:
családi ház
Jelleg:
Ikerház
Település:
Nyáregyháza
Alapterület:
90
Telekterület:
435
Ár:
79 900 000 Ft
Szintek száma:
Földszintes
Fűtés jellege:
Villany
Kor:
Új építésű
Telekterület típusa:
négyzetméter
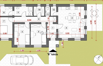
Felső Nyáregyházán Új építésű ikerház fél eladó! Nyáregyháza központi részén kínálom megvételre ezt a 99 nm alapterületű ikerházfelet. Műszaki leírás : -Beton alap-30-as Leier tégla-15 cm hungarocell szigetelés-Drapp színű nemes vakolat homlokzati záró réteg -Bramac tetőcserép ( barna szinben )-3 rétegű egy színű ablakok-Hőszivattyús fűtésrendszer ( padlón keresztül történő hőleadással )-1 db hűtő-fűtő klíma ( nappaliban )- Napelemes rendszer előkészítése ( napelemek nélkül )Hideg- Meleg burkolatok 6000 Ft / nm árban választhatóak-Szaniterek, beltéri ajtók és lámpatestek az árban. Várható átadás: 2026. 08. Megtekintéskor a teljes műszaki tartalmat prezentálom ! Amennyiben hirdetésem felkeltette érdeklődését, várom megtisztelő hívását a hét bármely napján. Referencia szám: HZ062378-NOK
https://ingatlanok.hu/elado/haz/nyaregyhaza/80-millio-ft;90-negyzetmeter;4-szoba;villany-futes/11579764