Az értékesítő:
Királymezei Tibor
+36 20 395 9886

Eladó családi ház Érd, 599 000 000 Ft, 630 négyzetméter

599 000 000 Ft
családi ház, 630 négyzetméter
Építőanyag:
Tégla
Egész szobák:
8
Fűtés módja:
Gáz
Ingatlan állapota:
Felújítandó
Azonosító:
11579970
Értékesítés típusa:
eladó
Ingatlan típusa:
családi ház
Jelleg:
Családi ház
Település:
Érd
Alapterület:
630
Telekterület:
2128
Ár:
599 000 000 Ft
Szintek száma:
Földszintes
Fűtés jellege:
Egyedi
Kor:
21-50 éves
Erkély:
Van
Telekterület típusa:
négyzetméter
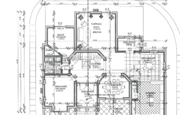
Érd városának egyik legexkluzívabb, legelbűvölőbb részén kínáljuk megvételre ezt a lenyűgöző, örökpanorámás villát. A páratlan ingatlan egy mesés, 2128 négyzetméteres, gondozott, parkosított privát telken helyezkedik el, melynek ékköve egy festői halastó, amely a nyugalom és harmónia tökéletes oázisát teremti meg. A 630 négyzetméteres épület 1997-ben épült, majd a jelenlegi tulajdonos megkezdte a modernizálást, amely magában foglalja a víz-, gáz- és villamoshálózat teljes felújítását. Új nyílászárók. A tetőtér megerősítésével további 200 négyzetméter beépítési lehetőség áll rendelkezésre, így a villa könnyedén bővíthető az Ön elképzelései szerint. Az ár jelen állapotban értendő, de igény esetén a felújítás befejezése is megoldható a meglévő tervek alapján, vagy egyéni igények szerint, rugalmas megállapodással. Az ingatlan elrendezése a következő: - Alsó szint: wellness és szórakozás helyszínei külön gondnoki szoba fürdőszoba WC-vel, gépészet, fitneszterem, mozi szoba, közlekedő, raktár, tároló, tágas szoba, borospince, szauna, valamint garázs - Földszint: impozáns előtér kiemelkedő belmagassággal, közlekedő, dolgozószoba terasszal, fürdőszoba WC-vel, hálószoba gardróbbal, tágas nappali nagy terasszal, valamint egy konyha külön reggeliző- és étkezőrésszel, terasszal kiegészítve - Emelet: privát szféra hálószoba erkéllyel, fürdőszoba WC-vel, további hálószobák, külön a gyerek és szülői hálószobák, közlekedő, összesen három hálószoba, valamint egy újabb fürdőszoba WC-vel A házban összesen 6 hálószoba, 4 fürdőszoba és 6 WC található. Elhelyezkedését tekintve a villa egy csendes, nyugodt utcában található, amely Érd egyik legkedveltebb és legexkluzívabb részét öleli körül. A közelben minden kényelmi szolgáltatás megtalálható: bevásárlási lehetőségek, iskola, óvoda. Budapest mindössze 10 perc autóútra, a Balaton pedig egy órányi távolságra helyezkedik el. Ez a rendkívüli ingatlan kivételes lehetőség, melyet nem érdemes kihagyni. Lépjen kapcsolatba velünk, és váltsa valóra álmai otthonát!
https://ingatlanok.hu/elado/haz/erd/599-millio-ft;630-negyzetmeter;8-szoba;egyedi-futes/11579970